エブリマンシアター
はじめに
リバプールのエブリマンシアターは、ハワース・トンプキンズ・アーキテクツによる印象的で革新的な作品である。 環境への配慮を体現したこの最新鋭の劇場は、最先端のデザインと環境に優しい実践をシームレスに融合させ、世界を舞台に持続可能なパフォーマンス・スペースの新たな基準を打ち立てるとともに、思慮深く責任ある建築の変革力を示している。
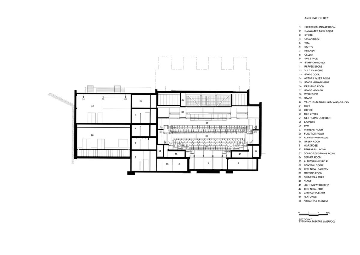
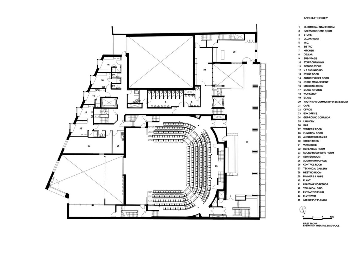
工事範囲には、適応可能な400席の講堂、小規模な開発・パフォーマンススペース、大規模なリハーサル室、公共ホワイエ、展示スペース、ケータリング、バー施設、サポートオフィス、ワークショップ、付帯スペースが含まれる。 ファサード全体がパブリックアートの大規模な共同作品となっている。
このデザインは、熱的に重厚な構造と一連の自然換気システム、低エネルギー技術インフラを組み合わせたもので、この複雑で居住者が密集する都市部の建物でBREEAMのエクセレント評価を達成することを可能にした。
歴史
1837年にチャペルとして建てられ、当初はホープ・ホールと呼ばれていたこの建物は、1960年の改装を経てシネマ・シアターとなり、1970年代には再び改装を経て、多くの人々に愛される リバプール・エブリマン・シアターとなった。 その後40年間、この劇場は街のボヘミアン・ライフの拠点となり、多くの俳優のキャリアに重要な役割を果たした。 そこでリバプール&エヴリマン・シアター・トラストは、エヴリマン・シアターの改修と新施設の追加を求めるコンペをヨーロッパで開催した。
広範な調査の後、設計チームは既存の建物を取り壊し、以前の建物の精神を受け継いだ、より近代的な新しい施設を作るという勇気ある決断を下した。
建設
この新劇場は、計画に10年、建設に2年以上を要した。 このプロジェクトは2004年にフィージビリティ・スタディから始まり、2007年に劇場建築の第一人者であるハワース・トンプキンスを起用するに至った。
2008年から2009年にかけて、アーティストや一般市民との継続的な協議が行われ、2009年にはアーツカウンシル・イングランドがプロジェクトへの支援を決定した。
2010年5月、リバプール市議会に計画が提出され、その3ヵ月後に計画が許可された。 その1年後、欧州地域開発基金からの投資により、資金パッケージは完成した。
劇場は2014年3月にようやくオープンした。
所在地
19世紀の礼拝堂を改装した旧劇場は、市内で最も重要な通りのひとつであり、市内で最も貴重な文化財のひとつであった。 しかし、21世紀の作品や観客にはまったくふさわしくないものだった。 その結果、元の劇場の跡地に特別に設計された新しい劇場を建設するという挑戦は、クライアントにとっても建築家にとっても勇気ある行動だった。

約10年にわたる事務手続き、協議、そして建設を経て、歴史的な市街地にある同じホープ・ストリートの敷地に建設された。 新しい建物は、元の劇場が持っていた民主的で階級のない価値観を発展させると同時に、イギリス・リバプール市に格調高く実質的な公共文化空間を提供することを目指した。
劇場はリバプールのカトリック大聖堂に隣接しており、18世紀と19世紀の指定建造物に囲まれている。
コンセプト
新しいエブリマンシアターの課題は、リヴァプールの 文化的・政治的生活の中心にある、リヴァプールの 象徴的な施設を建て替え、再提示することだった。 オリジナルの劇場は19世紀の礼拝堂、ホープ・ホールで生まれ、1970年代には演劇と政治的エネルギーの中心地となった。 しかし、新しいミレニアムのために、この建物は新しいプログラムに対応するための完全な修復を必要としていた。
ハワース・トンプキンス・スタジオは、技術的に先進的で適応性の高い新劇場を設計したが、旧館の親しみやすく機能的なアクセシビリティはそのままに、文化的包摂、コミュニティ参加、地域の創造性という組織の価値観をリバプールの人々に投影している。
スペース
この劇場の公共の顔は、通りに面した西側のファサードで、リバプールの現在の住民を描いた等身大の肖像画が描かれた100枚以上の可動式金属製スクリーンで構成されている。 地元の写真家ダン・ケニオンとのコラボレーションにより、このプロジェクトは、新しい劇場に不可欠な要素として、地域社会のあらゆる分野から写真を提供することになった。
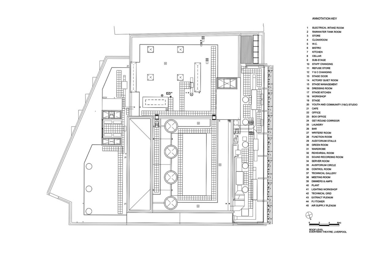
外壁に地元の赤レンガを使用し、4本の大きな換気用煙突が特徴的なシルエットを与えると同時に、周囲の建築と一体化している。
内部
フォイヤーズ
内部では、ホワイエは歓迎の意を表し、威圧的でなく、見やすく、一般の人々が楽しめる場所を作るようデザインされている。 講堂と同様、前の建物から引き上げたレンガと、古い資材の90%が再利用された。
これらのスペースは、3つの階層に分かれた回廊を中心に配置され、複雑なジオメトリーで織り成され、講堂を頂点に、地下のビストロ、ストリートカフェ、1階のバー、作家の部屋、コミュニティーの学習スペースなどを提供している。
バーのある1階の “ピアノ・ノービレ “つまり高貴なフロアは、建物の正面に沿って伸びており、その後ろに作家の部屋が隠れている。
「…建物は、通りから講堂への連続的な、曲がりくねった遊歩道を確立し、一連の半分のレベルの周りの公共スペースを整理することによって、サイトの複雑で制約された幾何学的形状を利用しています…」(ハワース・トンプキンス・アーキテクツ)。
オーディトリアム

1階から入る新客席は、前身と同様、オリジナルの舞台を忠実に再現した10mの可変式スラスト・ステージとなっている。 取り壊された劇場から引き揚げられた同じレンガを使って建てられたこの空間は、入念に計画されている。 オレンジ色の布張りの400人収容の客席は、観客と出演者が徒歩で移動できる距離にある。
客席は、モジュラー・ステージとフレキシブルな座席を使い、さまざまな構成に変えることができる。 暖かさ、密度、親密さは、エブリマンの有名で異常に広いプレイエリアの再解釈とともに、スペースの全体的な目的である。
その他のスペース
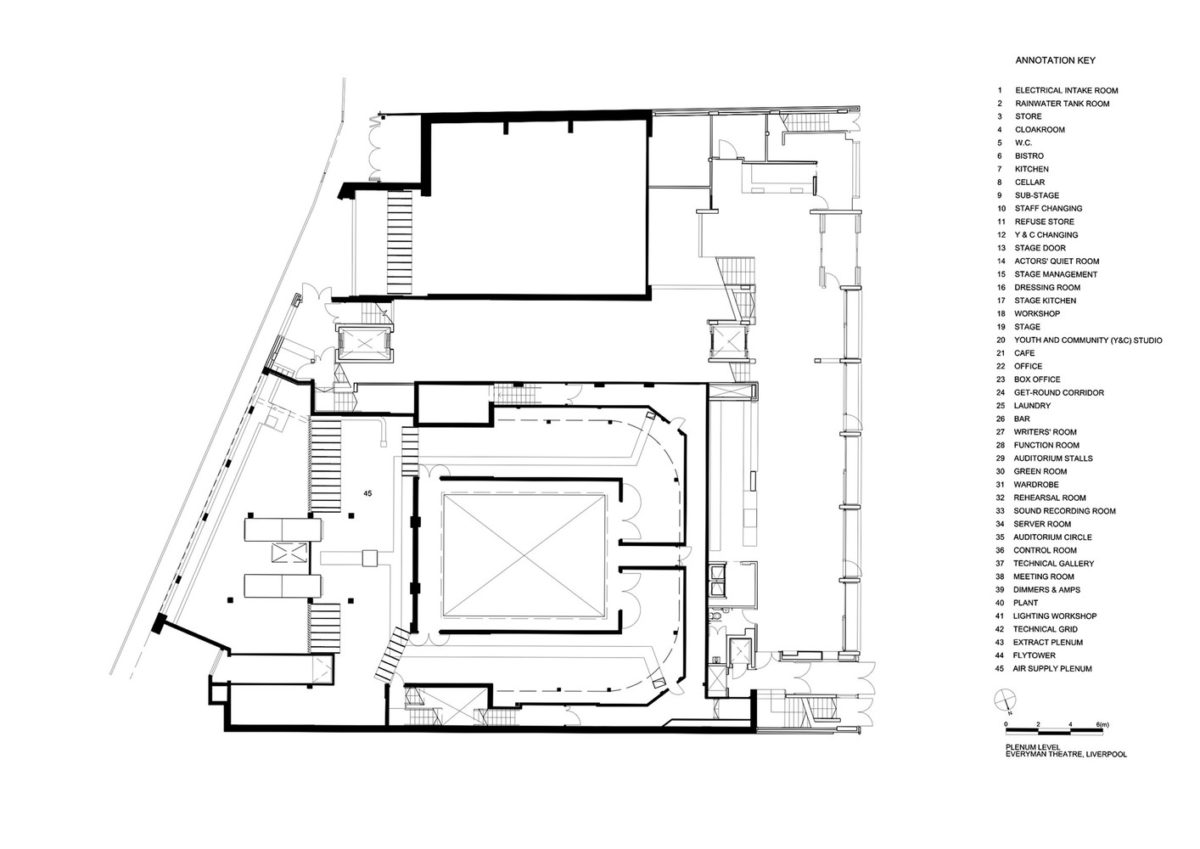
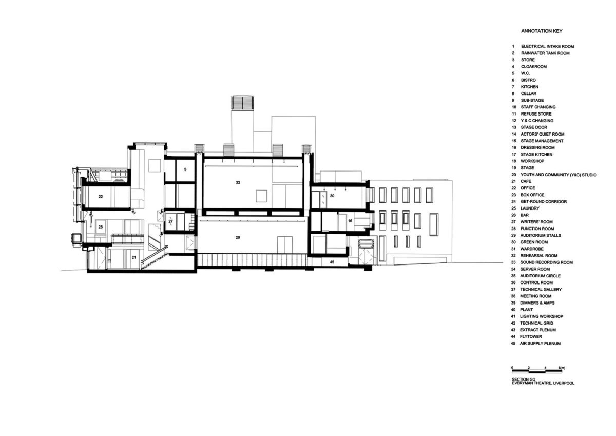
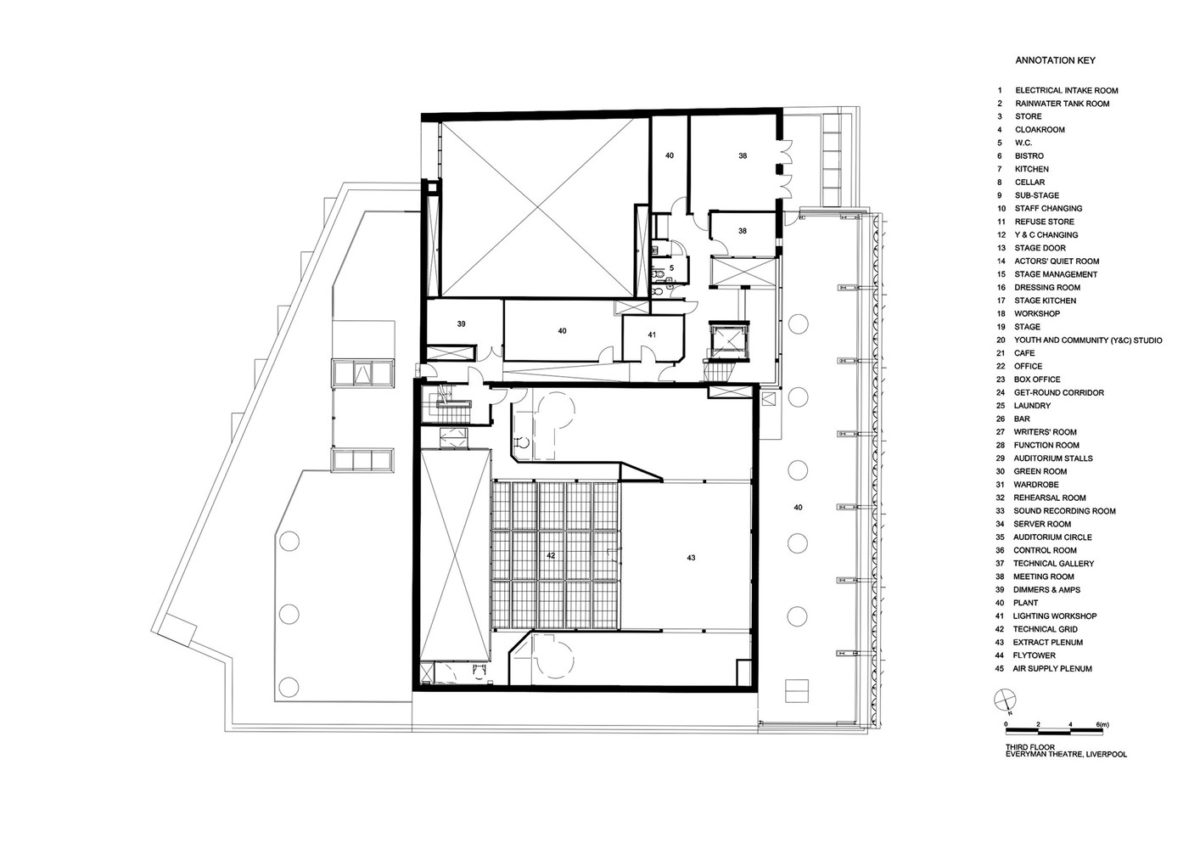
劇場の裏側は、オフィス、リハーサルスペース、ワークショップ、会議室、グリーンルームを相互接続し、創造的な仕事のためのひとつの環境として、パブリックエリアとまったく同じ配慮で設計されている。
構造
シナリオ
ステージ・エンジニアリング・システムには、取り外し可能なサブステージ構造上のモジュラー・ステージ・フロアが含まれており、劇場を様々な形式に素早く再構成したり、撤去したりすることができる。
プッシャーステージの上には、一連のテクニカル通路があり、中央の通路は大型部品に対応するために移動または取り外すことができる。 折りたたみ式の照明を備えたこの大きな橋の移動は、安定性と操作のしやすさを確保するため、鉄道スタイルの軌道をガイドとして鉄骨構造を使用したシンプルな手作業で行われる。 同様のレールシステムがプロセニアムパネルにも使われており、さまざまな開口部を作ったり、完全に取り外したりすることができる。
しかし、すべてのステージ・エンジニアリング・システムが単純なマニュアル・システムというわけではない。 スラストタワーとフライトタワーの上には、ポイントホイスト、チェーンホイスト、ラインセットからなる多軸パワーフライトシステムがある。 パワード・フライト・システムは、劇場が幅広いショーや舞台形式に対応するために不可欠なものだ。
座席
座席の取り付けは、舞台の床に穴を開けることなく、必要に応じて移動できるよう、プラットフォームの前面に巧みに組み込まれている。 移動時の耐久性を考慮し、シート構造のフレームは1枚の金属から作られ、背もたれには供給グリッドとして機能する特注のパターンと、異なる高さのステージに対応する一連の固定ポイントがある。
材料
新しいエブリマンシアターでは、元の劇場の古い資材の90%が使用されている。 外壁と4つの大きな換気煙突には、地元の赤レンガが選ばれた。
アーティストのアントニ・マリノフスキーがメインロビーの天井にペイントを施し、再生レンガ、黒いスチール、再生オーク材とイロコ材、色彩豊かな合板、淡いコンクリート打ちっぱなしなど、公共エリアと敷地裏手に広がる内部パレットを引き立てている。
タイポグラファーでアーティストのジェイク・ティルソンは、象徴的な赤いエブリマンサインの新バージョンのために特別なフォントを制作した。
エネルギー効率
この建物は、自然換気と高い熱質量によって、異例のエネルギー効率を達成している。
換気
講堂、スタジオ、ホワイエ、オフィススペースは、天井の特徴的な排気筒によって自然換気されている。
このシステムは、機械的な補助を必要とせず、後部の吸気口から外気を吸い込むシステムによって、一年中機能する。 この空気は、作業場の床下に設置されたサーマル・マスによって冷却され、エアポンプによってエンクロージャー内に送り込まれ、内部温度を調整する。 シートの後ろと下に配置された通気孔から、空間に空気が供給される。 人と照明が空気を暖め、浮力を与え、高い位置まで上昇させる。 ここから、テクニカル・ギャラリーのレベルに組み込まれた音響的に減衰された排気チャンバーを通って排気煙突へと運ばれる。
建物の特徴である背の高い煙突は、空気の流れが主に上と外に向かうようにする「煙突効果」を実現している。
機械設計には、雨水利用、高効率の熱電併給システム、高レベルの断熱材、可変的な外部日射遮蔽も含まれている。 これらすべての要素が組み合わさって、劇場としては珍しいBREEAM評価を達成することができた。
アクセシビリティ
この新築工事では、車椅子でのアクセスが確保され、コントロールルームの隣に「音声ガイド」専用ブースが設けられた。