キンベル美術館のピアノ・パビリオン
はじめに
イタリア人建築家レンゾ・ピアノの設計によるこのパビリオンは、米国 テキサス州フォートワースにあるキンベル美術館の増築として作られた。元の建物は1972年にルイス・カーンが設計したもので、美術館の常設コレクションが展示されている。 新しいパビリオンでは、センターの教育プログラムに加えて、増え続けるコレクションの他の作品も展示されている。
状況
キンベル美術館は米国 テキサス州フォートワースにある。 レンゾ・ピアノ設計のパビリオンは、元の美術館の建物の西側に位置し、庭園エリアによって隔てられている。
コンセプト
1960年代にルイス・カーンと仕事をしたレンゾ・ピアノは、このパビリオンを、彼の師匠の作品であるオリジナルの美術館の建物との関係に特別な注意を払って設計した。
ピアノのパビリオンは、規模、高さ、一般的なレイアウトにおいてカーンの建物と関連している。 しかし、新しい建物の特徴は、より開放的で、透明で、珪藻土のようである。 一方、新しいパビリオンはその表面積のほとんどが地下にあり、外観への影響を最小限に抑え、元の美術館との対話をより尊重したものとなっている。 プロジェクトの素材もカーンの建物との関係を確立するために選ばれ、主にコンクリート、木材、ガラスで構成されている。
レンゾ・ピアノのデザインのもうひとつのエッセンスは自然採光であり、美術館やアートギャラリーでは非常に重要なテーマである。 そのため、美術館には自然光をろ過する複雑な屋根のシステムがある。 さらに、ギャラリーの内壁のレイアウトは、講堂や階段スペースのように、思いがけない方法で光を取り入れることができる。 人工照明システムが空間の照明を補完する。
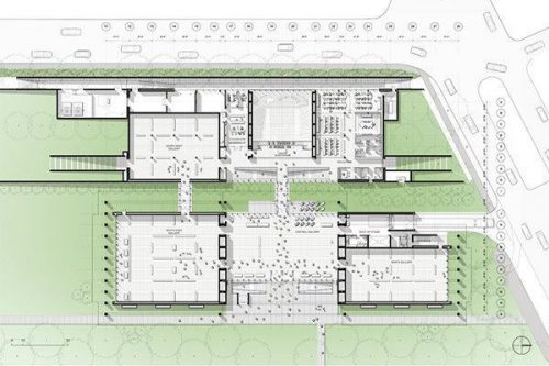
スペース
新しいパビリオンは、博物館の展示スペースを2倍に拡大し、企画展用のスペース、教室、博物館の教育部門用の部屋、298人収容の講堂、図書室、地下駐車場を備えている。
キンベル美術館は大部分が地下で開発され、新パビリオンの一部の屋上には複合施設の緑地が広がっている。 1.42ヘクタールの緑地には320本の木が新たに植えられ、そのうちの47本は旧館と新館の間にある高さ9メートルのニレの木で、カーンのプロジェクトのオリジナルの景観を保っている。
駐車場のレイアウトは、来館者が館内を見学する際のガイドにもなる。 元の建物の正面玄関は西側のファサードにある。 しかし、ほとんどの人は建物の東側にある裏口からアクセスしていた。 新しい駐車場の位置のおかげで、来場者は駐車場から出るとき、カーン・ビルの正面玄関にたどり着き、計画通りに整然と見学を始めることができる。
ピアノ・パビリオンは2つのボリュームで構成されている。 カーン・ビルに面したメインボリュームのファサードは、内部で行われている活動を反映した3つの部分で構成されている。 中央の全面ガラス張りの部分は、パビリオンの入り口に相当する。 コンクリートの壁で構成された側面部分には、企画展示用の部屋がある。 北側と南側のファサードは、より構造的な特徴がある。 一対の木製の梁が鉄筋コンクリートの柱に支えられている。 これはパビリオンのガラス屋根を支えるもので、パビリオンの周囲を越えて伸びているため、建物内には日陰を、屋外には避難場所を提供する。
パビリオン内の部屋は、複雑なシステムによって上から照らされている。 梁と梁の間の空間は、自然光の侵入をコントロールする一連のエレメントで占められている。緊張感のあるファブリック、ガラス、太陽光発電セル付きのアルミ製ルーバーなどである。 ギャラリーは、天井を構成する梁の間に設置された人工照明システムでさらに照らすことができる。
ガラス張りの廊下が2つあり、パビリオンの2番目のボリュームに通じている。 景観を考慮した屋根があり、建物の断熱性を高めている。 この巻では、最も光に敏感な芸術作品を紹介している。 さらに、図書館、講堂、教室があり、そこでセンターの教育業務が行われている。
ハーマンミラー社、ガイガー・インターナショナル社、ノール社によってデザインされた家具は、白、グレー、ライトブラウンなどの中間色と、深紅のコントラストで構成されている。
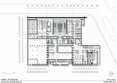
講堂
これはこのプロジェクトで最も重要な分野のひとつである。 ピアノ・パビリオン後部の中央部分に位置する。 小さな観戦エリアは1階からアクセスできる。 しかし、ホールへのメインエントランスは地下にある。 入念に研究された音響効果を持つ客席は、スロープ状の客席エリアと、自然光を取り込むピットによって後方に照らされたステージを中心に構成されている。 一日を通して変化する日光は、ホールの天井に設置された人工照明システムによって補完される。 客席のシートはイタリアのポルトローナ・フラウ社製。
構造
パビリオンの構造は、鉄筋コンクリートの耐力壁と柱、大きな木製の梁、そして上記の要素の重厚さを軽やかにするために特別にデザインされたガラスの屋根で構成されている。
材料
このプロジェクトで使用された主な素材は、コンクリート、木材、ガラスである。 これらの素材の選択は、新しいパビリオンをルイス・カーンによるオリジナルの美術館の建物とリンクさせている。
コンクリートの壁は、薄い灰色と滑らかな仕上げが特徴だ。 さらに、型枠が残した穴は9.15メートルごとに繰り返され、この種の工事としては長い距離である。 この特徴により、滑らかで途切れのない壁の内部は、美術館の作品を展示するのに理想的な場所となっている。
総重量435トンの29組の木製の梁は、内部空間全体にまたがり、建物の外まで伸びて、ガラス張りの屋根の下に車寄せを作っている。 梁の長さは30.5メートルで、アメリカ・オレゴン産のダグラス・ファーの集成材でできている。
屋根は多孔質ガラス(フリットガラス)の層で構成され、太陽光発電セルを含むアルミニウムのスラットを支えている。 自然光はこのシステムを通過し、薄い布によって減衰された後、アートギャラリーの内部に到達する。 この自然採光システムは、LEDライトによる人工採光システムを伴っている。
パビリオンの床は、屋根の梁の配置を反映したパターンで配置されたホワイトオーク材で構成されている。 さらに、ピースとピースの間の小さなスペースは、空気を低速で循環させ、床が一種の換気ダクトになる。
内部のパーティションは可動式で、軽快さを表現するようデザインされている。 底の部分だけに取り付けられ、ガイドの上に置かれるため、浮いているように見える。 厚さはわずか26センチで、544キロを支えることができる。
設備
ピアノ・パビリオンはエネルギー効率が高い。 そのメンテナンスに必要なエネルギーは、カーンの建物の1平方メートルあたり半分だ。 これは、パビリオンの地表のほとんどが地下にあることに大きく起因している。 地上階は空間の3分の1しかないため、完全な熱調整が必要なのはこの部分だけである。 さらに、メインホワイエと南北のギャラリーがあるこのエリアは、屋根によって守られている。 建物に設置された太陽光発電パネルは、日陰を提供し、建物で使用される年間エネルギーの最大20%を発電する。
深さ137mの井戸が36本あり、地中の温度を利用して建物の熱調整に役立っている。 照明や空調など、ホール内の他の設備もエネルギー効率が高い。
ビデオ














































































