ニームのカレ・ダール
はじめに
カレ・ダール・ド・ニームは、現代美術館と市立図書館を擁する文化施設です。
メディヤテークはフランスのほとんどの町や都市に存在する。 雑誌、書籍、音楽、ビデオ、映画などを扱うのが一般的だ。 あまり一般的ではないが、アートギャラリーが含まれることもある。 パリのモデルであるポンピドゥー・センターのように、カレ・ダールにはマルチメディア図書館と現代美術館が併設され、地域住民や観光客に新しい活気のある場を提供している。 視覚芸術と情報技術の世界、この2つの文化が同じ建物の中で相互作用することで、より豊かな総合性がもたらされる。 ニームの都市環境もまた、その実現に大きな影響を与えた。
歴史
1983年、新しく市長に選ばれたジャン・ブースケが、この新しい施設の設立を中心に、この街を文化の中心地にする計画を確認した。 1984年、フランク・ゲーリー、ジャン・ヌーヴェル、セザール・ペリら12人の建築家が、新プロジェクトの提案書を提出するよう求められた。 イギリスの建築家ノーマン・フォスターが設計し、1993年5月に落成した。
この博物館は、1798年から1800年にかけて建設された新古典主義劇場の跡地に建てられたが、1952年の火災で全焼し、新古典主義様式の柱廊を残すのみとなった。
コンペで優勝した後、フォスターは数々の提案を行ったが、古いファサードを新しいプロジェクトに統合するものもあれば、そうでないものもあった。 審査員は、柱のないプロジェクトを選んだ。 これらは解体され、高速道路のサービスエリアに置かれた。
更新
2018年には再改修が完了し、レセプションの改善、新しいデジタル用途への適合によるサービスの最適化、エネルギー効率の改善、アクセシビリティの向上が図られ、建築的アイデンティティを放棄することなく21世紀の要件に適合した。
展示フロアでは、偽天井に照明器具を挿入して照明を変えた。 ボイラーと集中熱管理が変更され、エネルギー効率が向上し、消費量が30%削減された。
所在地
美術館は、フランス、オクシタニア地方ニームの中心部、ヴィクトル・ユーゴー大通りの端に位置し、ラ・メゾン・カレとして知られる皇帝崇拝のローマ神殿の向かいにある。
カレ・ダールの建物は、かつてのローマ劇場があったカレ広場16番地に、広場の修復と寺院の新しい舞台を提供するプロジェクトの一環として建設された。
コンセプト
その挑戦は、新しいものと古いものを関連付けながら、同時に、自らの時代を表現する建物を誠実に作り上げることだった。 カレ・ダールは、紀元前1世紀のローマ神殿メゾン・カレの向かいに建てられている。 この都市空間の創造は、古代ローマ神殿に隣接する環境を活性化することを目的としたメゾン・カレ広場の修復プロジェクトの一環であった。
歴史的環境での建築
カレ・ダールは、歴史に彩られた敷地に建築的な介入を施した成功の結果であり、公共空間を建築デザインに組み込むことで、最近まで美術館の典型的な機能であった文化的娯楽活動を組み込むという現在の傾向を示している。
ブノワ・ジュリアン教授によれば、古代の環境への介入は4つの極に基づいている:
- 敷地への碑文:ボリューム、スケール、プロファイルによって、新しい建物を周囲の景観に溶け込ませる。
- 環境との整合性:過去の延長線上にある控えめな対応、あるいは断絶。
- 歴史の存在:素材、テクスチャー、形状のいずれかを使用することで、歴史的背景を喚起する。
- 現代性の肯定:空間、テクノロジー、イノベーションを組み合わせた現代的なアプローチで歴史と対話する。
このような意識的なアプローチによって、古代の環境に建物を建てることは、それ自体が建築の創造となるのだ。
スペース
金属製の5本の細い柱が、同じく金属製のスラットでできた天蓋を支えるポルティコは、5段の階段のある基壇によって支えられている。 つのメインエントランスは、長方形のフロアプランの両端にある。
カレ・ダールは、完璧なまでに純粋なラインを持つ大きなガラスの立方体として表現されており、その最大の特徴は透明性である。 ニームの家々の中庭を彷彿とさせる中央の吹き抜けは、建物の全高に及び、最上階のアートギャラリーへと続く記念碑的な階段がある。 この空間は、モダンな素材の透明性と軽さを生かし、すべての階に日光が差し込むようになっている。 アトリウムの頂上にはキャノピーがあり、この建築のもうひとつの基本要素である光が建物内に流れ込むようになっている。
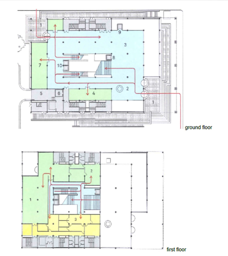
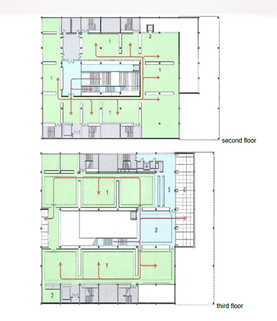
建物は9階建てで、その半分が道路面より低い位置にあるため、建物の輪郭は低く抑えられ、周囲の建物のスケールと調和している。
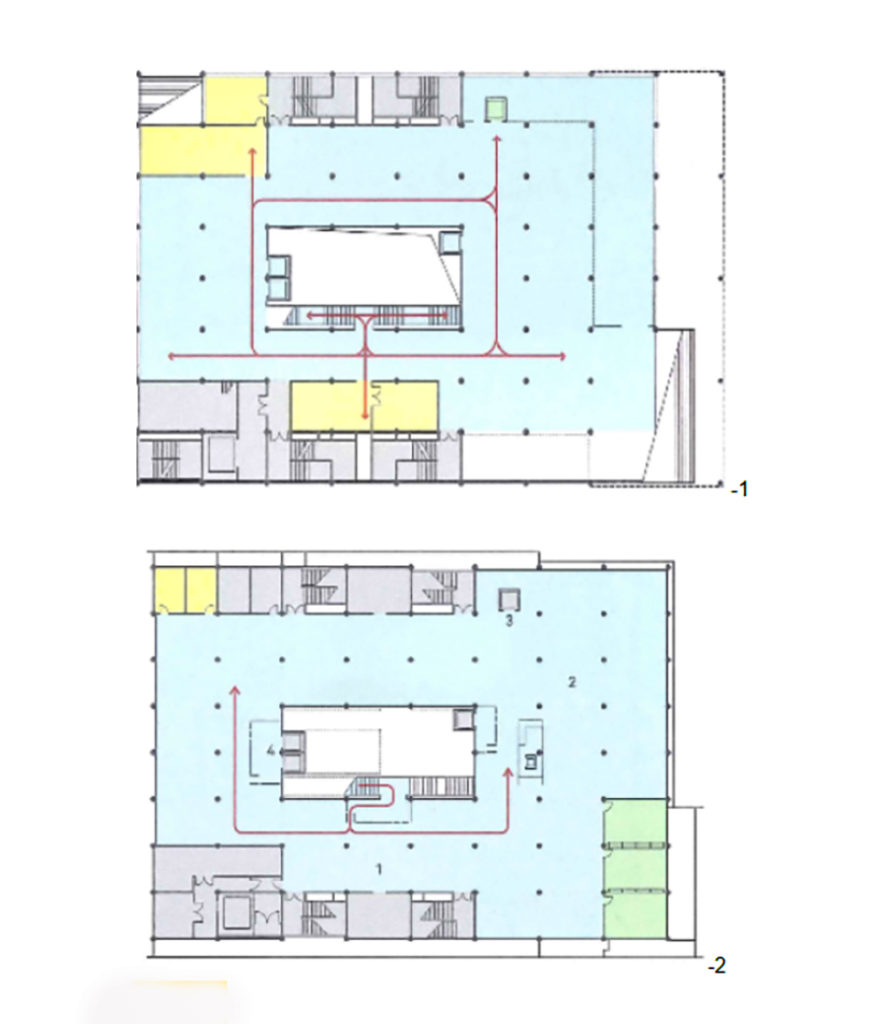
低い路面レベル
メイン・ライブラリーは地下1階に位置し、ホワイエから続く大きなヴォイドから直接光が差し込む。
次の地下室には資料保管室と映画館がある。
路面より上
1階には書店と新聞ライブラリーがある。 建物のホワイエは企画展示にも使われている。
階には子供図書館を含む図書館がある。
上階の2フロアには、自然光を最大限に利用したアートギャラリーと、コレクションや企画展を展示するスペースがある。 面積は約2,000平方メートルで、19世紀の美術館の間取りを思わせる古典的な構造になっている。
カレ・ダールのために特別にデザインされた2つの作品、リチャード・ロングの「マッド・ライン」(壁材に手形が描かれている)と、エルズワース・ケリーの「ガリア」(鮮やかな不透明度が建物の透明度とコントラストをなしている)だ。
メゾン・カレ・スクエア
1988年の大洪水でメゾン・カレ・フォーラムが壊滅的な被害を受けた後、ノーマン・フォスターは、かつて自動車が占拠していたメゾン・カレ広場の修復と再生も担当した。 オープンな歩行者空間は、人々が集い、コーヒーを飲んだり、静かに歩いたりできる、新たな社交の場となった。 さらに、賢明な政治的イニシアティブに支えられたこのプロジェクトは、ニーム市の社会的・物理的構造を活性化させる強力な触媒となる。
構造
この建物は、9×9のグリッドの円柱状のコンクリート柱と、床から天井まで様々な種類のガラスとスチールフレームで構成されたファサードで構成される直方体である。
回転を防ぐため、フレームとフレームの間に柱が配置され、水平方向の要素は垂直方向の要素よりもはるかに剛性が高い。 この一見非常に細い柱は、ポルティコの柱と同様、剛性の高いブレース・システムによって上部が支えられている。
材料
建設に使われた主な素材は、スチール、コンクリート、そして透明度の異なるガラスである。 キャノピーとポディウムの柱は金属管でできている。
内装の壁、天井、階段にガラスを使用することで、自然光を通し、堂々とした外観を明るくしている。



































