バービカン
はじめに
ブルータリズム建築の象徴であるバービカンは、常に物議を醸すプロジェクトだった。 2003年に「ロンドンで最も醜い建物」に選ばれたこの建物は、デザイン愛好家の間では英国建築の至宝のひとつである。 現在では、この街に住むことは文化や舞台芸術の中心地となり、差別化と一定の購買力の証となっている。
2001年、この複合施設全体がグレードⅡに指定された。 センター内の多くの公共スペース、カフェやレストラン、舗道や庭園など、敷地内は訪問者に開放されている。
第二次世界大戦後、シティの統治機関であるシティ・オブ・ロンドン・コーポレーションは、ブリッツでほぼ全壊したクリップゲート区と呼ばれる商業地区の再建を目指した。 戦後の包括的な再編成の必要性を認識し、1947年に制定された都市・国土計画法により、公社などの地方自治体は、広大な地域を再開発するために土地を購入することができるようになった。
1963年に建設が開始され、建設中の1969年に一部の建物が完成したものの、正式にオープンしたのは1982年3月3日で、エリザベス2世が「世界の近代的驚異のひとつ」と宣言した。 その印象的な空間とユニークな立地は、都市景観の中にありながら、20世紀における最も重要な建築成果のひとつとして国際的に認知されている。
所在地
バービカンのような大規模プロジェクトを展開するのに十分な広さのスペースを大都市の中心部に見つけるのは非常に難しい。 この場合、第二次世界大戦中、ドイツ軍によるイギリス・ロンドン市街への継続的な爆撃のせいで、かつて布地貿易が盛んだったシティの一角が破壊された。 その被害は甚大で、1951年にはクリッペルゲート区には48人しか住んでいなかった。
バービカンとは、クリプリーゲートの繁華街にある通りの名前である。 19世紀末には、布、皮革、毛皮、手袋、その他多くの商売の中心地となった。
バービカン・エステートは、複数の地下鉄駅、鉄道駅、バス路線から徒歩圏内にある。 ロンドン中心部からも徒歩で約30分。
コンセプト
バービカンは、第二次世界大戦(ブリッツ)の爆撃で荒廃したロンドンの一帯を変えるというユートピア的な構想の一環として、建築家チェンバリン、パウエル&ボンの設計から発展した。 建築家たちは、建物や都市の住まい方に根本的な変革を提案する機会をつかんだのだ。
古代ローマの要塞やフレンチ・モダニズム、地中海の休日やスカンジナビア・デザインなど、豊富なパレットからインスピレーションを得ている。
街の中の高架島としてバービカンが建設された当時、複合施設と他の地区を結ぶ高架歩道のネットワークが検討されたが、後に破棄された。 建築家のチェンバリン、パウエル&ボンは、自分たちが設計しているのは一連の建物ではなく、多数の出入り口を持つ地区全体であり、そのうちのいくつかは長年にわたって変更されてきたと主張した。
この住宅は、建築家たちによって「地中海の休日、フランス料理、スカンジナビア風のデザインを好む、おそらく若いプロフェッショナルたち」と説明された、異なる客層にアピールすることを意図していた。 このエステートは、戦後、さびれたシティに彼らを呼び戻すための手段であり、そのデザインはその魅力の大部分を意図したものだった。
スペース
バービカンの住宅は、3つのタワー・ブロック、13のテラス・ブロック、2つのテラス・ブロックに分かれている。 現在、この集合住宅には約4000人が住んでおり、学校、バービカン・センターなどの文化施設、ロンドン交響楽団やBBC交響楽団の本拠地である舞台芸術センター、音楽学校、演劇学校、コンセルヴァトワール、図書館、アート・ギャラリー、ロンドン博物館、そしてロンドンに現存する数少ない中世の教会のひとつであるセント・ジャイルズ・クリップレゲート教会跡を中心に、2014年に建てられたフラットに住んでいる。 ロンドンだ。
建築家のチェンバリン、パウエル&ボンにとって、広大な敷地と市街地を視覚的なモチーフで結びつけることは重要だった。 これには文字が重要な役割を果たし、ハーバート・スペンサーが噴水と敷地周辺の看板のデザインに雇われた。
タワーズ
プロジェクトが進むにつれ、タワーは高くなり、形も変わっていった。 建築家は当初、スリムで軽やかな外観の30階建ての正方形のタワー3棟を提案していた。 1959年には37階建ての多角形の塔が提案され、最終的に1961年に43階と44階建ての塔の建設が決定された。 不規則な屋根のライン、三角形の突出したバルコニー、垂直の構造部材がデザインに取り入れられた。 各タワーには、中央ロビーから3基の乗客用エレベーターがある。
このフラット数の変更は、1平方メートルあたりの人口密度と、バービカン・コンプレックスの建設によるこの地域の住宅喪失に関連したロンドン郡議会の要求であった。 タワーの高さは、ポディウムレベル以上で、クロムウェル・タワーは43階建て、ローダーデール・タワーとシェイクスピア・タワーは44階建てである。 三角形に見えるが、厳密に言えば多角形である。 中身は3つともよく似ている。 各タワーの最上階にあるペントハウスはさておき、各フロアに3戸の住居がある。
リビングルームは、一日の大半に日光が入るように、タワーの角に計画されている。 キッチンとバスルームはブロックの中央に集中しているため、リビング、ダイニング、ベッドルームの外壁面は最大となっている。
地下室には、テナント用の倉庫、主貯水タンク、機械・電気設備用の部屋がある。
テラス・ブロック
地上階の空間の背景となるようにデザインされた長いテラスブロックは、時には基壇から直接立ち上がり、時には柱でその上にそびえ立つ。 最大7階建てで、すべて居住用だ。
バービカンの南側では、両者は平行に並んでいるか、並んでいる場合は互いに90度の角度を成している。 北から南、あるいは東から西へと走る。 北バービカンでも、建物の方向が南バービカンの方向ではなく、隣接するゴールデン・レーン団地の「グリッド」に沿っていることを除けば、位置はよく似ている。
すべてのフラットにバルコニーがあり、厚いニス塗装の木製フレームが付いたアルミニウム製のスライド窓から出入りできる。 バルコニーにはコンクリート舗装とプランターがある。 フラットの室内には、玄関ドアの横に郵便受けとメーターボックスの入った戸棚がある。 7階のフラットは、樽型の吹き抜けの天井が高い。
ポディウム
ポディウムとは、プロジェクトを周囲より少し、短い距離だけ高くするためのプラットフォームのことである。 この歩行者レベルは、高さはまちまちだが、一般的に道路レベルから6m高く、高い歩道で結ばれたテラスの形で敷地の4.8haを占めている。 ポディウムは新たな「地上階」として意図されたものであるため、1階または0階とすることに決定した。 他の階は、上が1階、2階、3階など、下が01階、02階、03階となっている。 レベル03はストリートレベルであることもある。 手すりの端から身を乗り出して湖や庭園を見渡すと、基壇はさらに高く見える。
建物の下に広がる舗装されたテラスの連続性や、植栽や水辺がオープンスペースを繋ぎ、定義していることは、アンサンブルの統一性に大きく貢献している。 バービカンの南側にある建物の長いテラスに囲まれた主要なオープンスペースは、イギリスの首都の公園や広場でおなじみのように、芝生、森の木々、水の造園で壮大なスケールでレイアウトされている。
表彰台を彩る人造湖は浅瀬で、そのために色がつけられている。 これにより、周囲の建物からの反射を避けることができ、奥行きがあるように錯覚し、泳ぎたくなる人もいるだろう。
私たちは通常、”表彰台 “のことを “表彰台 “と呼ぶが、厳密に言えば、2つの表彰台のことを指している。 土地は川に向かって傾斜しているため、地所を完全に平坦に保つためには、基壇部をずらす必要があり、北側の基壇部は南側の基壇部よりも数メートル高く造らなければならなかった。
ポディウムの下のほとんどのエリアは駐車場と商業施設で占められている。
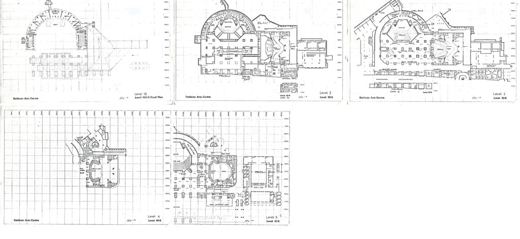
バービカン・センター
バービカン・センターは世界的に有名なアートセンターで、1,166席のバービカン・シアターと200席のザ・ピットの2つの劇場、馬蹄形の別館を持つバービカン・アート・ギャラリー、288席、255席、155席の3つの映画館、1949席のコンサートホール、バービカン・ホール、様々な舞台芸術活動のためのインフォーマルなスペース、3つのレストラン、7つのレクチャー・シアター、2つの展示スペースがある。 隣にはロンドン博物館があり、本物のローマ建築もある。
オープン当初から、このセンターは街の創造的・文化的な要として、世界中から集まるアーティストやパフォーマーにプラットフォームを提供してきた。
構造
バービカンの構造は、基本的にコンクリートの建物で構成され、強固な柱とボアリングされた杭基礎の上にある。 この記念碑的な素材の使用は、建設方法として現場打ちの鉄筋コンクリートを選択したことで可能になった。
ファウンデーション
タワーやテラス棟、バービカン・エステート全般の基礎工事を行う際、エンジニアは敷地の下を通る鉄道トンネルをどのように乗り越えるかを慎重に検討し、助言を得なければならなかった。 鉄道がバービカン・センターでのコンサートや演劇の妨げにならないように、またアパートの所有者の迷惑にならないようにすることが不可欠だった。 相談した音響学者は、地面や建物の構造に到達する振動の量を減らすために、ゴム製のベアリングに線路を取り付けることを提案した。 この解決策は長年にわたって機能してきた。
もうひとつの問題は、下層土に杭やコンクリートを埋め込む際に、現在セント・ポール大聖堂の下を流れている地下水路を迂回させないようにする必要があったことだ。 当時、この工事によって開発と大聖堂の地下の地盤が乾燥し、大聖堂の構造的な損傷を引き起こす可能性が懸念されていた。
タワーズ
タワーには、コンクリート基礎と耐力杭のシステムが使われた。 張り出したバルコニーの曲線は、風の抵抗を減らすためにデザインされた。 タワーブロックの主要構造は、中央のエレベーターシャフトと階段、そして露出した柱から立ち上がる梁と分割された柱の周辺フレームで構成されている。
各ブロックはプレキャスト構造の鉄筋コンクリートユニットで構成され、建物の外壁を囲むフレームを形成するように設計されている。 これが主な構造だった。 内壁は二次的な安定性を高め、ある程度の耐荷重性を備えている。 コンクリート壁は、重量が最もかかる建物の下部ほど厚くなっている。
段々畑
テラス棟は、耐力壁と鉄筋コンクリートの床スラブというシンプルな構造で、梁はバルコニーの端まで伸びている。 この建築方式が採用されたのは、多くのフラットに壁一面または床から天井までの窓を設けることができるからだ。
テラス棟の多くは直径1.2メートルの柱で支えられている。 このアイデアは、建物周辺の空間を開放し、デザインの異なる部分に連続性を持たせることだった。 望まれていたのは、大きなタワーによる圧迫感を避け、常に見晴らしの良い眺望を確保することだった。
駐車場と商業施設
ポディウムの下を主に駐車場として、また商業施設としても利用できるようにするためには、ポディウムを支える柱が近すぎないようにする必要があった。
南側のエリアでは、柱の間隔はおおむね10.69メートルで、屋根は正方形の格子状の鉄筋コンクリート製リブとその上のコンクリート・スラブで形成されている。 北側の柱間隔は7mで、よりオーソドックスなフラットスラブ構造が採用された。
これらのスラブは通常、かなりの温度変化にもひび割れすることなく耐えることができるが、バービカンの重い荷重と大きなスパンのため、上部基壇スラブは13.94m2を超えない範囲に分割され、スラブを構造的に分離するエキスパンション・ジョイントが取り付けられた。 これらのエキスパンション・ジョイントや “構造的不連続部 “は、フレキシブル・ウォーター・バーを使用することで水密性を高めている。
材料
建物のほとんどは、砕いた花崗岩を混ぜた鉄筋コンクリートで建てられているが、プレストレスト・コンクリートの使用が必要な箇所もある。
計画のさまざまな段階を通じて、バービカンの外観はさまざまな可能性を持っていた。 当初、チェンバリン、パウエル、ボンは、バービカンを隣接するゴールデン・レーン団地の設計に似せたものにするつもりだった。 1959年の報告書では、建築家たちはブロックのテラスを白い大理石で覆い、塔は高度に磨き上げられたコンクリートで、柱は滑らかなカラー・コンクリートで仕上げるというプランを描いている。 バルコニーをモザイクで覆うという提案もあった。 この豪華で高価な素材の選択はロンドン市によって却下され、より経済的だが労働集約的な打ち放しコンクリート仕上げが採用された。 このクラッディングによって得られた外観は、この巨人的プロジェクトの顕著な特徴のひとつとなった。 すべての建物の表面で均一な外観を得るために、壁はハンマーで叩かなければならなかった。 コンクリートが完全に乾くまでは作業ができないため、ピックで打ち付けた。
基壇やその他のオープンエリアはアースカラーのタイルで舗装された。 ポディウムとその下の建物を支える外壁は、同じ色と質感の “セミ・エンジニアード “レンガで覆われている。
レンガとタイルは、階段、湖の周囲、駐車場の大部分、ポディウム・レベル以下のフラットの入り口に使われた。
表彰台の照明は光電池によって制御されており、夕暮れ時にすべての照明が点灯し、朝には消灯する。




























































