構造エンジニア
CCDIグループ、テレルグループ
建設会社
中国国家建設工程総公司
ディベロッパー
シェイク・サウド・ビン・モハメド・ビン・アリー・アル・ターニー
設計された年
2002
建築された年
2005 - 2012
高さ
238,1 m
最上階の高さ
190,4m
46
エレベーター
25
建築面積
110,000 m²
正面
アルミニウムバタフライ
位置
カタール、ドーハ、ウェスト・ベイ、アル・コーニッシュ通り1番地

はじめに

ブルジュ・カタール、ブルジュ・ドーハ、ドーハ高層オフィスビルとも呼ばれるこの円筒形の超高層ビルは、直径45m、高さ238mで、フランス人建築家ジャン・ヌーヴェルによって設計された。

設計チームは、過去のプロジェクトを土台に、他の文脈で得た知識を駆使して建物の輪を完成させた。 このタワーは、気候に対応するファサードスクリーンを使うことで、地元の文化や慣習との明確で直接的なつながりを確立している。 このデザインは、オフィス利用者に柔軟で効率的、かつ興味深いワークプレイスを提供し、オーナーのニーズにも配慮している。 最後に、このビルは、ファサードの質感と建築照明によって、昼夜を問わずドーハの スカイラインの象徴的な存在となっている。

ブルジュ・ドーハは、2012年高層建築都市評議会賞(Council on Tall Buildings and Urban Awards)で、中東・アフリカ最優秀高層建築物賞(Best Tall Building Middle East & Africa)と世界最優秀高層建築物賞(Best Tall Building Worldwide)を受賞した。

所在地

このビルは、カタールドーハのウェスト・ベイにある、ペルシャ湾沿いの著名なウォーターフロント道路、アル・コーニッシュ通りに面している。 政府省庁や将来の地下鉄アル・ビッダ駅にも近い。

コンセプト

タワーの円筒形は、床から窓までの面積と、オフィスとエレベーター間の相対的な距離の効率から決定された。 さらに、ビルの中心部を中心部からずらすことで、よりフレキシブルな床面積のオフィススペースを確保した。

スペース

延床面積110,000m2、居住面積60,000m2、湾を見下ろすこの46階建てのビルはオフィス向けだが、高さ182mには個人邸宅のペントハウスがあり、190.4mにはパノラマビューを楽しめるレストランがある。 高さは238.1m。

アクセス

タワーの基部には幅25メートルのパーゴラがあり、緑豊かな庭園と日陰になるエントランスを提供している。 緩やかなスロープがロビーの入り口まで下り、タワーとそれを支える大地とのつながりを強調している。 敷地の40%を占める造園は、歩行者の体験を豊かにする。

内部は吹き抜けになっており、27階までの高さは112mに達し、8基のガラス張りのエレベーターが設置されている。 27階以降は、下層階と上層階を結ぶ移動ロビーとなっている。

事業所

1フロア800mと1200mのオフィスフロアは、フレキシブルで様々な構成が可能だ。 さらに、光ファイバー電話ケーブルや衛星テレビなど、最新のテクノロジーもテナントに提供されている。 プランの効率性が最優先されたが、建物の全体的な形状により、各フロアがユニークな大きさを持ち、微妙に異なる効果をもたらしている。

各階からは、東に湾、南に港、西に市街、北に海岸と砂漠のパノラマビューが楽しめる。

ペントハウス

ドーハ・タワーは、高さ182mのドームの中に大きな個人住宅を配置することで、オフィスタワーのコンセプトに意外なひねりを加えている。 この高級レジデンスには、建物への専用エントランスとエレベーターがあり、隣接するレストランへのアクセスも可能だ。 ドーム構造とスクリーンが織り成す印象的な効果は、実にユニークな空間を作り出している。 レジデンス内には、サウナ、プール、一般的な住宅設備がある。 周囲360度の眺望が楽しめるこのレジデンスは、実にユニークだ。

建物はドームで覆われ、その先には231.50mの高さから光が差し込む塔がある。 鉄骨とコンクリートの構造体に続いて、菱形のグリッドが円筒の仮想表面に沿って曲がっている。

駐車場

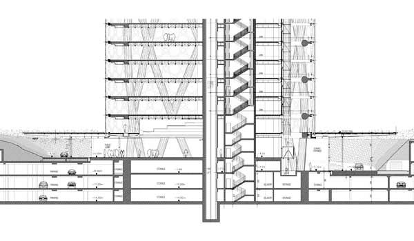
タワーの地下3階には合計870台の駐車場があり、オフィステナント専用となっている。

構造

このヘリカル構造は、構造工学の設計において、各層にポストテンション・リング梁を使用することによって再分配される、形状によって生じる「爆風」外力など、現実的な課題を生み出した。 大規模な地下室は、建設前の数ヶ月間、乾式積み上げと脱水手順で形成された。 メインフレームはチューブとして設計され、外側の鉄筋コンクリート二重らせん構造が鉛直荷重と横方向のウィンドブレーシング荷重の最大75%を支えている。 床は複合鋼板と鉄筋コンクリートの組み合わせで設計された。 その構造は、伝統的なコンクリート斜材ではなく、傾斜した外周柱が8階ごとにX字型の構造システムを形成し、荷重を基礎に分散させる。

このシステムは、ファサードスクリーンとともにオフィス空間にユニークな効果をもたらす。 一般的なオフィスタワーとは異なり、内部の空間的な質感は、光とテクスチャーのパターンが変化するもので、単調な標準を打ち破っている。 設計チームは、中央のサービスを建物の片側に配置し、開放的な空間を作り出した。

ジャン・ヌーヴェルは長い間、高層ビルの伝統的な直交型センターコアカーテンウォール方式に疑問を呈してきた。 パリのトゥール・サン・フィンのプロジェクト以来、建設されることはなかったが、彼はたびたび円形プランの塔のコンセプトを探求してきた。周辺部の構造システムにより、開放的で採光性の高い空間を実現し、内部の照明をよりコントロールし、景観を豊富に眺めることができる。

塔は全幅のドームと尖塔で覆われている。 日焼け止めの役割を果たす「ムチャラビエ」は、相補的な幾何学模様のパネルが4枚重なるようにデザインされている。

材料

構造には主に鉄骨と鉄筋コンクリートが使われた。

ファサードスクリーン

複雑な模様のステンレス・スチールのスクリーンで覆われた建物は、東洋の複雑なムチャラビエを想起させる、異なるスケールと複雑な模様の4つのアルミニウム製「バタフライ」エレメントで構成された外皮で覆われている。

このクラッディング・システムは、イスラムの伝統的な「マシュラビーヤ」、つまり部屋を日陰にしたり仕切ったりするために使われる芸術的なスクリーンを参考にしている。 このシステムのデザインには、ファサードに沿ってさまざまな密度で重ね合わされた、さまざまなスケールの単一の幾何学的モチーフが使われている。 オーバーレイは、太陽条件に対応して制作される。北面には25%、南面には40%、東面と西面には60%の不透明度が設定された。 遠くから見ると、スクリーンは均一な密度に見えるが、近くで見ると、スクリーンの層とスケールの複雑さが明らかになり、建物に複数のテクスチャー体験を与えている。

遮光層の背後には、わずかに反射するガラスで作られた典型的なカーテンウォールシステムがあり、これで日射遮蔽が完成する。 必要に応じてローラーブラインドも利用できる。 メンテナンスは、金属とガラスという2つの層の間にある幅2mの歩道から行う。 これらの通路は、2つの層の間に「煙突効果」を生み出すことで、タワーを換気する役割も果たしている。 ガラス張りのカーテンウォールの裏側には、ユーザーが操作可能なソーラースクリーンも用意されている。 ファサードシステム全体では、冷房負荷を20%削減できると見積もられている。 夜間は、内蔵照明システムがプログラム可能なライトショーで繊細なディスプレイを引き立てる。

ビデオ

図面

[gallery ids="308878,308888,308863,308923,308868,308873,308928,308903,308913,308908,308898,308893,308918,308883"]    

写真

WikiArquitectura (Diciembre 2018)

[gallery ids="309275,309280,309285,309290,309295,309300,309305,309310,309315,309320,309325,309330,309335,309340,309345,309350,309355,309360,309430,309365,309370,309380,309385,309375,309390,309400,309435,309395,309405,309230,309225,309440,309410,309240,309245,309415,309235,309250,309255,309260,309270,309420,309265,309425"]
Emplazamiento
Alzado
Sección
Detalle sección
Detalle sección
Detalle sección
Detalle sección sótano y primeros pisos
Detalle sección últimos pisos
Planta 1200mts
Planta 800mts
Maqueta