ベイラー財団美術館
はじめに
創立者のエルンストとヒルディ・ベイラーの夫妻には明確なビジョンがあった。それは、ベイラー財団は、幅広い観客に美術鑑賞のインスピレーションを与える、オープンで活動的な美術館でなければならないということだった。 文化教育と人との出会いを促進する博物館。 今日、ベイラー財団はスイスで最も人気のある美術館のひとつであり、世界最高の美術館のひとつとされている。
レンゾ・ピアノの設計によるこの建物は、自然、芸術、建築の理想的な組み合わせにより、文化的景観とエレガントに融合している。 パリの ポンピドゥー・センターやヒューストンのメニル・コレクションを設計した建築家の仕事に感銘を受けたエルンスト・ベイレールは、コンペを開催することなく、このイタリア人建築家に設計を依頼した。
拡大 ピーター・ズムソール
美術館の拡張工事は2021年晩夏に開始される予定だ。 この増築により、ユニークな建物のアンサンブルが生まれ、一般公開される公園の面積はほぼ2倍になる。
アトリエ・ペーター・ツムトールが設計した増築部分は、アートハウス、管理・物流施設を提供するサービス棟、イベント・パビリオンの3棟で構成されている。 最初の2棟は、美術館の敷地南側に隣接するイゼリン=ウェーバー公園に、平屋のパビリオンはベロワー公園の既存の境界塀の隣に建設される。 1500平方メートルの展示スペースを持つ新しい美術館の建物は、コレクション展示や小規模なパフォーマンスのためのものだ。 サービス棟にはオフィスと技術施設があり、美術品の搬入も行っている。
所在地
ベイラー財団の建物は、スイスの バーゼル市郊外にある17世紀のベロワー邸の公園の真ん中にある細長い敷地に建っている。 睡蓮の池に囲まれ、東端には道路があり、西側には長寿の木々が生い茂り、トウモロコシ畑、放牧された牛、ブドウ畑、そして黒い森の麓が見渡せる、ユニークな場所である。
エルンスト・ベイラーは故郷のリーエンで、彼が求めていた自然とのつながりを持つ土地を見つけた。 ヴィラ・ベロワーの美しい敷地は、芸術と自然が調和する美術館の理想的な舞台だった。
美術館は東側の道路から外周壁で守られている。 西側のコンサバトリーからは、チューリンガー丘陵の麓にあるヴィース川まで広がる風景が見渡せる。 南側には、モネの作品を反映した睡蓮の池があり、屋内と屋外のスムーズな移行を生み出している。 芝生やテラスの石造りの席は、美術館の美術品を外から眺めるように誘う。
コンセプト
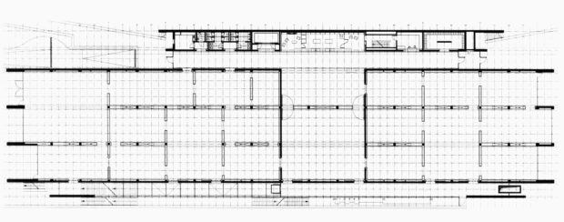
レンゾ・ピアノは計画当初から、建築と自然を融合させ、地形に合わせた3つの翼を持つ建物を提案した。 敷地内の庭を区切る2つの周壁は、美術館の設計にインスピレーションを与えた。
コレクションをワンフロアで利用できるようにし、建物南側の正面に池を作りたかったため、建物全体を地中に沈めなければならなかった。 これにより、建物と景観の調和がとれただけでなく、美術館がより親しみやすいものになった。 パタゴニア産の火山岩(ポルフィリー)を使用することで、壁が風景に溶け込み、あたかも建物が昔からそこにあったかのように見える。
スペース
ヴィラ・ベロア
博物館の向かいにある18世紀後期バロック様式のベロワー邸は、その庭園の中にあり、博物館の管理部門とレストランが入っている。 エレガントな建築と、広々とした公園内にあるヴィラの絶好のロケーションが、居心地の良い雰囲気を作り出している。 広いテラスからは、公園とアレクサンダー・カルダーやエルズワース・ケリーの彫刻の美しい眺めを楽しむことができる。
説明
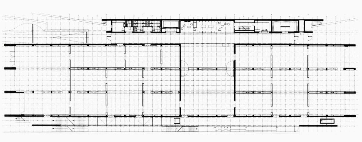
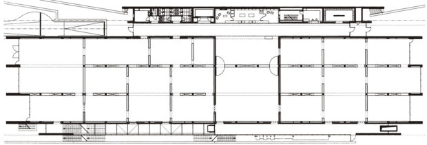
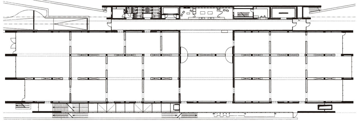
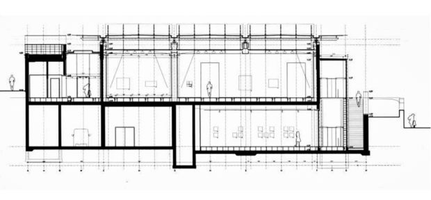
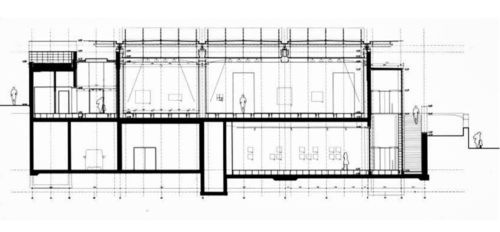
エントランスホールの左右に広がる展示室は、大きさはさまざまだが、すべて同じ高さである。
美術館の内部空間は4つの横壁に沿って構成され、南北のギャラリーの端には、幅6.8m、高さ5mの床から天井までの窓がある。 この大きな窓は内部と外部をつなぎ、展示作品と周囲の風景との対話を成立させるのに役立っている。 美術館の西側には、ガラス張りの細長いウィンター・ガーデンがある。
天井
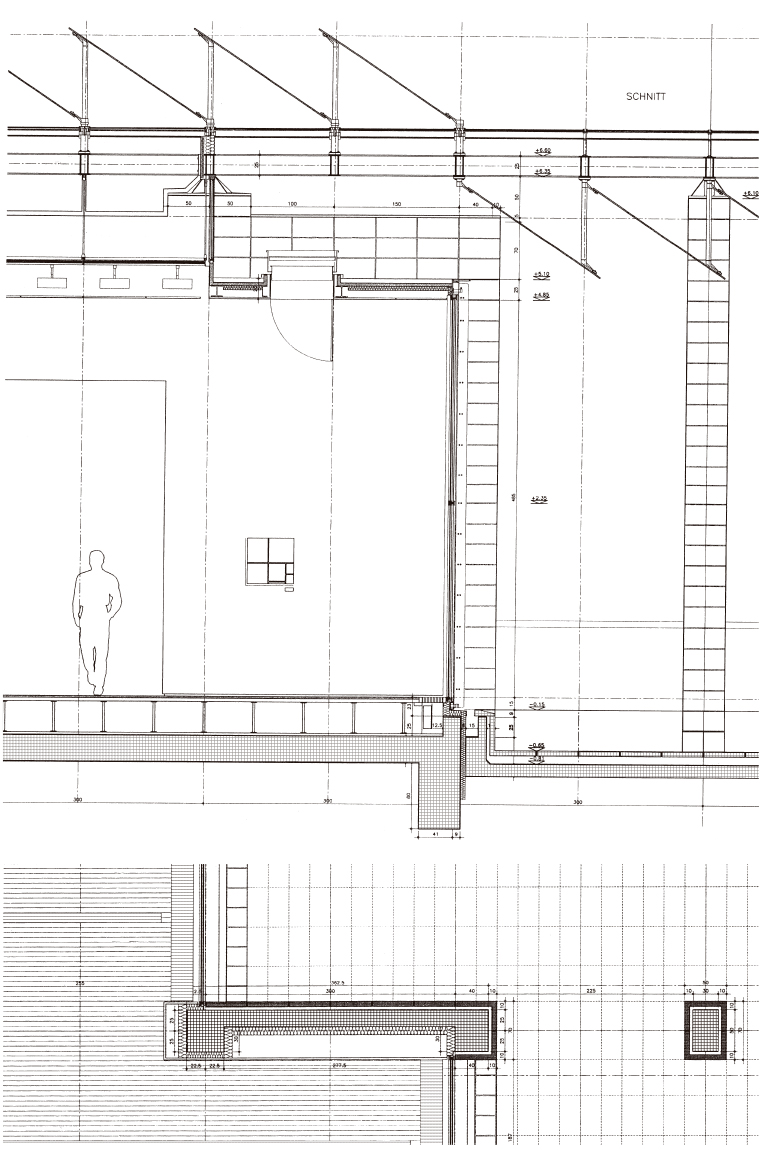
強固な基礎壁の上に、軽量ガラスでできた平らな屋根(4000m2)、裏側は白くガラス張りになっており、北からの光は取り込むが、東と西からの光はシャットアウトする。 北側と南側に沿って、屋根は壁から大きく張り出し、ガラス張りの部屋のファサードを日差しから遮り、憩いの場を作り出している。 建物はガラス張りの西側ファサードから、テューリンガー丘陵を覆うトウモロコシ畑とブドウの木々を眺めることができる。
開館から2年も経たない1999年、建物は12メートル延長され、展示スペースは458平方メートル増えて合計3764平方メートルになった。
構造
この構造には、4つの長く巨大な壁の間に空間を設け、すべてのファサードに軽くて結晶のような屋根を張り出させ、自然光の量をコントロールし、内部環境を変化させたいという建築家の要望が反映されている。
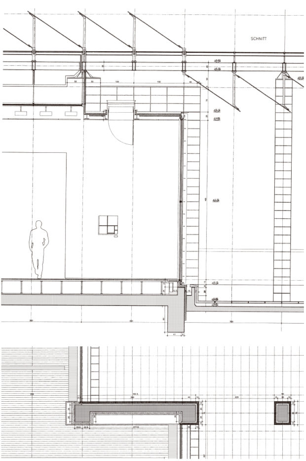
長さ127m、高さ4.8mの4つの支持壁が、南北方向に、互いに平行に、また区画を示す壁と平行に、7m間隔で伸びており、建物の平面図を定めている。 この壁は、コンクリート柱を格子状に組んだもので、外側は石板、内側は石膏ボードで覆われている。 平行六面体を囲む短い壁はガラス張りになっている。
断面はよりダイナミックだ。 壁の高さはそれぞれ異なり、一番東の壁は公園内に伸びて、エントランスへと訪れる人々を導く建物の壁に似た低い壁になっている。
天井
建物の北端と南端にある平らな屋根の張り出しは、石で覆われた鉄骨の柱で支えられている。南端では床スラブが伸びて睡蓮の池を形成し、風景の中に広がっている。 鋼鉄製の屋根構造は、ガラス屋根や内部ルーバー、二重ガラス、ガラス遮光パネルを支える支柱など、屋根のさまざまな層を連続的に支えている。
シンプルな金属構造からなる屋根の支持システムは、展示ホールからはほとんど見えず、石造りの壁面の重々しさとは対照的な軽やかさを建物に与えている。
それなりに高い積雪荷重に耐えるだけでなく、地震にも耐えられるように設計されている。
材料
自然光
バイエラーは、美術品が自然光で完全に照らされ、美術館が周囲の草木に包まれることを望んだ。 自然光をこよなく愛したエルンスト・ベイラーの観点から、屋根のデザインには特別な注意が払われた。
日照データを調査した結果、エンジニアは、ほとんどのヨーロッパの美術館の約2倍である4%の日照率を目標とし、光量を所定の範囲内に保つためのアクティブ・シェーディング・システムを推奨した。 この目的は、すべてを覆う多層構造のガラス屋根によって達成され、北側は日光を取り込み、東と西は遮る。
多層屋根は、傾斜した不透明ガラスのサンシェード、平らな二重ガラスの屋根、二重の操作可能なルーバー、ガラス屋根、第二の穴あき金属屋根で構成されている。
透明な屋根の下、1.4メートルには2層目のガラスがあり、外気温の変化に対抗し、メンテナンスを容易にするための空気室となっている。 調整可能なルーバーはこのチャンバー内にあり、外が暗いときに直射光と人工照明を適度にカットする。 このベールの下には、穴のあいた板でできた箱があり、その中に白い布が敷き詰められている。
南北方向の下側のルーバーは可動式で、構造用ガラスの層で保護されている。軸線に対して配置された上側のルーバーは、建物の特徴的なイメージを与える傾斜で固定されている。
軽やかなガラスの屋根は石壁から大きく張り出し、ガラスのファサードを日差しから守っている。 曇りガラスのパネルは、室内に影が落ちるのを防ぐが、微妙な光の変化を可能にし、生き生きとした雰囲気を作り出す。
ポルフィリー
外壁と柱は鉄筋コンクリート製で、それらを覆う石と敷地を区切る石は、アルゼンチン・パタゴニアから持ち込まれたポーフィリーという切りっぱなしの石で、この地域の特徴である砂岩に非常によく似ている。 バーゼル新型は、少し硬く、メンテナンスの負担が少ないとはいえ。
エアコン
スイスではエコロジーの観点からエアコンは使用されていないが、価値の高い美術品には厳密な空調管理が求められる。 具体的には、機械冷房と機械換気を正当化する必要性の説明書を自治体に提出すること、建物が可能な限りエネルギー効率に優れていることを証明するための動的な年間エネルギー分析を行うことなど、一定の条件付きで免除された。
ギャラリーは、屋根と東西に設けられた熱的な “緩衝 “空間によって、極端な気候から守られている。 冬、外周暖房が必要なのは、外に直接窓があるギャラリーだけだ。
作品周辺の空気の流速を最小限に抑えるため、実排気量システムが設計された。 空気は、木製の床に特別に設計された直線状のグリルから、ほとんど知覚できない速度で放出される。 各ギャラリー・モジュールへの空気供給は、地下のサービス通路に設置された可変風量ボックスによって制御される。














































































