建築された年
1928 – 1932
3
位置
フランス、パリ

はじめに

1928年、ダルサチェ夫妻はパリの古い建物を購入し、それを取り壊して自宅とダルサチェ博士の婦人科クリニックのための新しい建物を建てるつもりだった。 このプロジェクトは、アパートの売却を拒否した1階の元所有者の立場によって変更された。

デザインは、建築家ピエール・シャロー、家具・インテリアデザイナー、オランダ人建築家ベルナール・ビヴォエ、金属職人ルイ・ダルベのコラボレーションによるもの。 この家の複雑な可動式の景観の多くは、プロジェクトが進展するにつれて現場でデザインされた。

ダルザス博士はフランス共産党員であり、反ファシズムと文化活動の両面で重要な役割を果たした。 1930年代半ば、ガラスの家の「居間」は、ヴァルター・ベンヤミンなどのマルクス主義知識人や、ルイ・アラゴン、ポール・エリュアール、パブロ・ピカソ、マックス・エルンスト、ジャック・リプシッツ、ジャン・コクトー、イヴ・タンギー、ジョアン・ミロ、マックス・ヤコブなどのシュルレアリスムの詩人や芸術家たちが定期的に訪れるサロンとなった。 1992年、グラスハウスは歴史的建造物に指定された。

第二次世界大戦でドイツ軍がパリを占領すると、ダルレース夫妻とシャロー夫妻はアメリカに逃れた。 メゾン・ド・ヴェールは家具を取り払われ、親戚によってフランスの田舎の納屋に隠されていた。 ドイツ軍はこの家を徴発しようとしたが、暖房も照明もできないことに気づいて断念したという話だ。 戦後、ダルレース夫妻が戻り、この家は2006年まで一族の所有となったが、その後、アメリカ人コレクターで建築家から投資家に転身したロバート・ルービンに売却された。 ルービンはこの建物を丹念に修復し、フランス人の妻と子供たちとともに住んでいる。ピエール・シャローはアメリカに留まり、生涯で他に2つのプロジェクトを建てただけで、どちらも現在は残っていない。 メゾン・ド・ヴェールは、その創作者の天才的な才能と、近代建築の規範における破天荒な創作者としての彼の遺産を証明するものである。

所在地

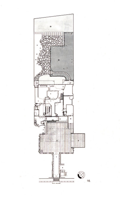
フランスパリ7区、サン・ギョーム通り31番地にあるこの建物は、2つの中庭に挟まれた狭い通路から入るブロックの中にある。

コンセプト

メゾン・ヴェールでは、空間的な限界は、そのパーティションにおける構築的な複雑さによって曖昧にされている。 外観は半透明のガラスブロックの壁と、透明なグレージングで構成されている。 内部では、ガラス、ホイル、パンチングメタルのスライド式、折り畳み式、回転式のスクリーン、あるいはこれらの組み合わせによって、空間的な仕切りを変化させることができる。

グラス・ハウスは1928年から1932年にかけて、建築史の中で時代を超越したスタイルで建設された。複雑な仕上げと可動要素で構成された結果、モダン・スタイルの一部ではあるが、モダン・ムーブメントの基本原則からは距離を置き、1950年代まで普及しなかった美学に近づけた。

それは、素材の誠実さ、フォルムの可変的な透明性、そして「工業的」な素材やアクセサリーと、より伝統的な住宅装飾のスタイルとの並置である。

スペース

裏庭に面した1階にジャン・デルサーチ博士のオフィスを設けることで、プログラムは型破りな方法で設計された。

1階

エントランスを共有する住宅と診療所の可変的な回遊パターンは、回転する半透明のパネル・スクリーンによって解決され、日中は診療所の受付に入る患者からプライベート・エリアにつながる階段を隠し、夜間はそれを縁取る。

ファーストレベル

ガラスファサードの室内効果を存分に感じられる二層吹き抜けのリビングルームで、小規模なコンサートにも十分対応できる。 常に自然光が差し込む北側は、設計の意図がすべて表れている。 ピエール・シャロー メゾン・ド・ヴェールでは、金属のプロファイルが見えるようにした構造的な誠実さと、主に木で造られ、アール・ヌーヴォー様式を彷彿とさせる、複雑なパーティション・システムと可動式家具の組み合わせに基づく装飾が特徴である。

この1階には、電話ボックスのあるダイニングルーム、その他の部屋、キッチン、パントリー、そして裏庭に面したコンサバトリーと小さなプライベート・ラウンジがあり、折りたたみ階段で寝室に直接出入りできる。

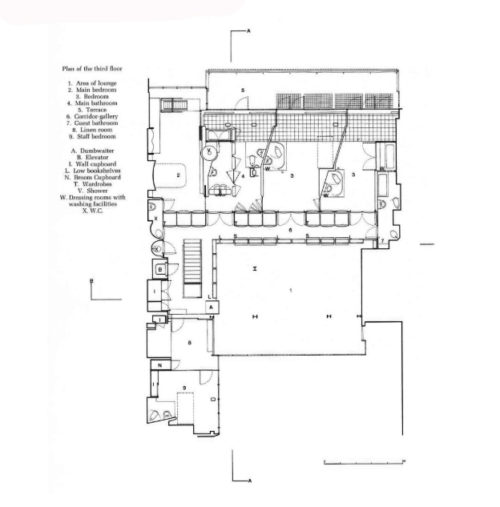
第2レベル

階には、裏庭を望む寝室、リビングルーム、メインバスルーム、ゲスト用バスルーム、アイロンルーム、ユーティリティルーム、テラスがある。 寝室とトイレの両方へのアクセスは、メインホールの二重の高さに張り出したギャラリーを経由しており、その手すりは本棚として機能するようにデザインされている。

構造

プロジェクトを進めるため、建築家のピエール・シャローと ベルナール・ビジュヴォエは、ホテルの1階を新しい金属構造で補強し、下の階を取り壊すことにした。 その結果、新しい3階建てのビルは、金属製の梁と柱が見えるように、また構造や使用されている材料を垣間見ることができるように、ところどころ2倍の高さを持つようになった。

メタルフレーム

スチールグリッドは、主に底面でガラスブロックを支え、4つまたは6つのエレメントからなるパネルを作り、建築の必要性に応じて使い分け、2つのファサードのドアや窓が配置された部分に堅固さを与えている。 この構造フレームは、ファサードを補強するために100x9mmの平らな鋼板に溶接された2枚の30x15mmのU字型プロファイルで形成された垂直マリオンで作られている。 ガラスブロックを支えるフレームを完成させるのは、最初のフレームと同じコの字型の水平部分2つである。 1930年、シャローはこの鉄骨をモルタルで覆い、継ぎ目のない、骨格の見えない、まるで無限の透明な平面のような表面を作り出した。 しかし、1960年代にメイン・ファサードへの介入が行われ、この連続したクラッディングが取り除かれ、金属パーツが取り付けられ、内部の下部構造を外部に移すことで強化された。

家のメインフロアの床スラブは、フロントとリアの両方のファサードで片持ちになっている。 いずれの場合も、キャンティレバーに隣接する柱の並びはファサードと平行に、つまり内部の支柱の相対位置と直角に配置されている。 その結果、ファサードのすぐ背後には、横方向の平面を自然に強調する空間スロットが生まれ、残りのすべての空間を包含する、等価な層状の読みを誘発する。

インテリア

内部は、前庭から庭に至る一連の垂直の平面または空間層によって構成されている。 支柱と構造軸の処理と配置は、これがプロジェクトの当初の意図であったことを示唆している。

部屋は木製または金属製のワードローブの扉で仕切られ、スライドしたりスイングしたりするが、鉄骨の梁、パイプ、ダクトの構造は見えるまま建築に組み込まれ、家の実用的な要素を装飾的な要素に変えている。 ガラスのスラブやレンガも、空間を区切るために使われてきた。 時にはファサードがコンクリートとのコントラストで強調され、日本の影響を受けた幾何学的な遊び、形式的な反復、リズミカルな枠組みから生まれる。

材料

メゾン・ド・ヴェールの建設に使われた主な材料は、スチール、ガラス、ガラスブロックである。 これらの材料はすべて、工業的な可能性を秘めた新しい建築の前衛に属するものであったが、このようなプロトタイプの家を建てるには、典型的な工業建築から離れた、非常に特殊な建築技術や工法が必要であった。 シャロー自身、このことを次のようなコメントで認めている。「……この家は、標準化を気取る職人たちによって作られた模型だ……」。 その結果、莫大な費用がかかり、実現は4年遅れた。

シャローはこの家のためにエレガントな特注家具を作ったが、内装は大量生産された産業資材でいっぱいだった。 プリンストン大学の建築学教授、エスター・ダ・コスタ・メイヤーは「……家の外観が当時としては珍しいものであったとすれば、内部は完全に別世界のものだった……」とコメントしている。

キッチンからダイニング・ルームへのトロリー・リフト、プライベート・リビングルームからダルセース夫人の寝室への開閉式はしご、複雑なバスルームのキャビネットや備品など、機械的な備品がある。

メゾン・ド・ヴェールの内部は、足元にライトのついた電話ボックス、口ひげの形をしたアルミ製ハンガー、玄関から寝室まで十分な時間がかかるようにタイマーで家を照らす入り口の赤いボタンなど、細部に至るまで特別なカリスマ性と魅力があり、喜びと楽しさに満ちている。 この邸宅は、その独特で独創的な特徴にもかかわらず、かなりの親密さと快適さを兼ね備えている。 シャローは、工業用素材と自然素材をバランスよく使用した。 ピレリ・ゴムの床と金属格子の階段は、木材、スレート、磨き上げられたラッカーで他の部分を和らげている。 表面はソフトな手触りで、硬いエッジは丸みを帯びている。 いわゆる “青い部屋 “には印象的な青いカーペットが敷かれている。 ジャン・ダルザスの学校の友人であるジャン・ルルサットによる布張りのスクリーンと刺繍が、温かみを添えている。

ダルベットは、リビングルームの換気口、マダム・ダルサーチの寝室にある開閉式階段、バスルームの信じられないようなエレメントなど、すべての金属パーツを手作りした、とダ・コスタ・メイヤーは説明する。 飛行機の翼のような可動式のアルミパネルが、ジーンのシャワースペースとアニーのバスルームを分けている。

ガラスブロック

北と南の2つの主要なファサードの壁は半透明のガラスブロックでできており、ところどころに透明な窓がある。 このようなブロックを使用することで、玄関の中庭や裏庭など、反対側の景観に関係なく、フィルターを通した光を取り入れることができる。 建築家はこの家を「光の箱」にしたかったと言われている。

背面ファサードの1階と2階には、メインファサードと同じブロックが使われたが、1階の小さなプライベートラウンジとコンサバトリーには、別のタイプのパネルが使われた。 これらの部品には水密性を確保するために革製のガスケットが取り付けられ、一部には蝶番が付いていた。

図面

[gallery ids="306132,306152,306137,306157,306127,306142,306147,306122"]

写真

Fotos archivo

[gallery ids="306179,306169,306164,306199,306194,306174,306184,306189,306204"] Fotos Agust Fischer [gallery ids="306209,306239,306214,306219,306224,306229,306234"]
Planta baja
Primer piso
Segundo piso
Detalles baño principal
Alzado
Detalle escalera abatible