天津浜海図書館
はじめに
MVRDVと天津都市計画設計研究院(TUPDI)は、ドイツの建築家GMPが設計した天津市の文化地区を提供する大規模なマスタープランの一環として、天津浜海図書館を完成させた。 33,700m2の濱海文化センターは、光り輝く球形の講堂と、床から天井まで流れ落ちる本棚が特徴で、教育センターとしてだけでなく、公園から文化地区へとつながる社交的な空間でもある。
楕円形の開口部が建物を貫き、講堂を含む光り輝く球体 “アイ “へと続いている。 球体の形と呼応するように取り付けられた棚は、ファサードの外側に広がり、ファサードを包み込むような地形的な内部景観を作り出している。 こうすることで、千鳥格子状の棚が外側に描かれ、各階層が格子状に複製される。
近未来的な外観のライブラリーはギャラリーの中にあり、大聖堂のようなアーチ型のアーチが全体を覆っている。 MVRDVのプロジェクトは、バーナード・ツクミ・アーキテクツ、ビング・トム・アーキテクツ、HHデザイン、GMPといった国際的な建築家チームによって設計された他の4つの文化施設に囲まれている。
同図書館は、MVRDVのプロジェクトとしてはこれまでで最速のものだ。 最初のスケッチからオープンまで、わずか3年しかかからなかった。 竣工時期が決まっていたため、設計段階の直後に掘削が行われた。 タイトな建設スケジュールのため、アトリウムの奥の部屋から上部の棚へのアクセスという、プログラムの重要な部分を断念せざるを得なかった。 この変更はMVRDVの助言に反して現地で行われたもので、上部の棚へのアクセスは不可能となった。 現在のところ、アトリウムの最初の14のトレイだけが一般に公開されており、本物の本が置かれている。 図書館の完全な構想は将来実現される予定だが、それまでは本の背表紙を印刷した穴あきアルミ板が上段の棚に置かれていた。
天津浜海図書館は、中国のグリーンスター・エネルギー効率基準に従って建設された。
所在地
この図書館は天津濱海市の委託により建設されたもので、中国 北京近郊の海岸沿いの大都市、天津の濱海地区の文化センターに位置し、紫雲公園の向かいにある。
濱海は中華人民共和国西部に位置する天津市の一地区で、渤海の沿岸にある。 面積は2270km²、人口は248万2100人。
コンセプト
天津図書館は、ドイツの建築家GMPによる12万m2のマスタープランの一部であり、周辺地区の特徴を際立たせることを目的としている。 この複合施設は、そのデザインを通じて、旧市街、住宅街、商業地区、官庁街を結ぶ点となり、それぞれに欠けているプログラムを補うことを期待している。
そのため、アイとその周辺のセミパブリックエリアは、内部空間であり、まるで逆さまになったアイコンのようであり、建物の中でフォーカルポイントとアトラクションとして機能している。
外から見ると、ガラスのファサードを通して、その透明性と光の戯れによって、講堂の球体は巨大な目の瞳孔となり、起伏のある棚に囲まれて、その形は輪郭を描き、図書館の中心部は自由に照らされたままになっている。 これらのトレイは、階段から座席まで、さらには天井に沿って全体として機能し、照らされた地形を作り出す。 そのうねるような形は、砂丘の風景や想像上の海にできる波紋を連想させる。
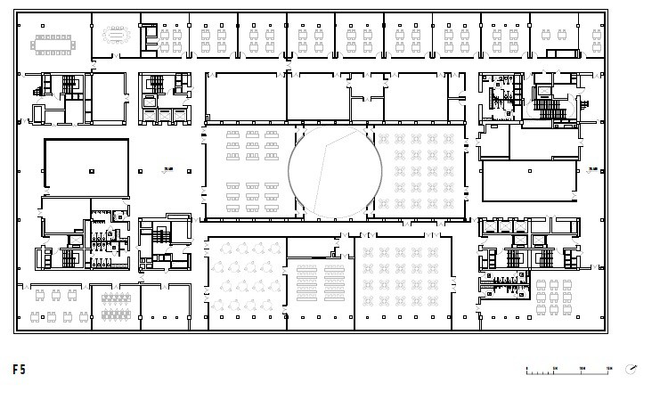
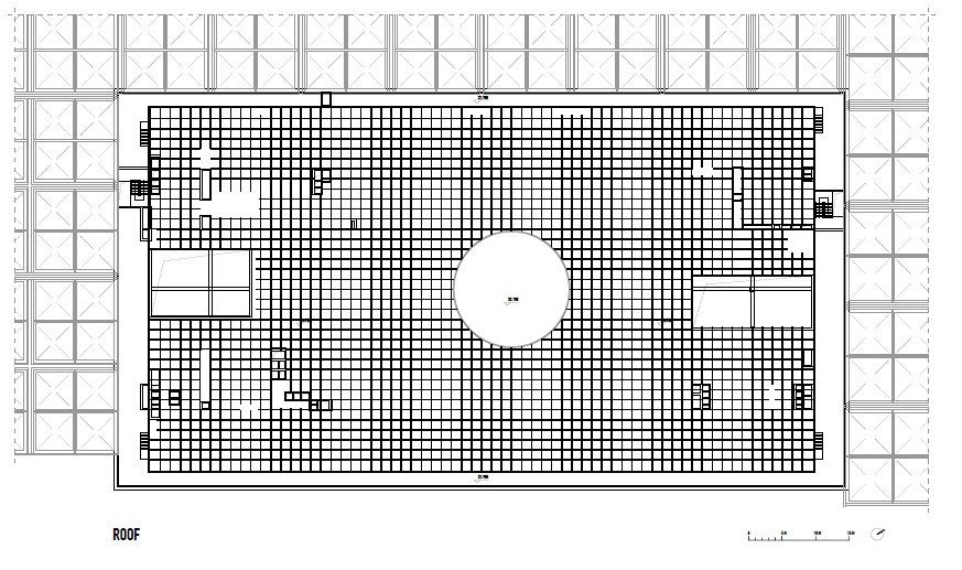
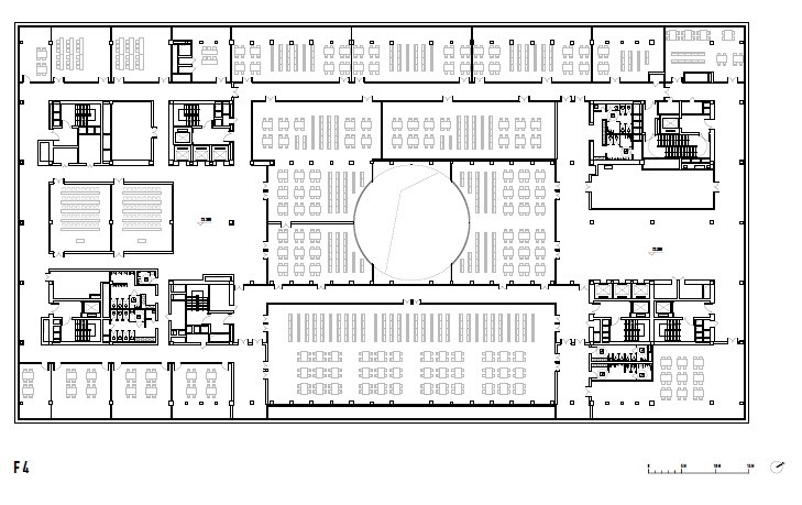
スペース
公園に隣接するこの図書館は、GMPの設計によるガラス屋根の下、公共回廊で結ばれた5つの文化的建造物群の一部である。 GMPのマスタープランの中で、MVRDVは デザイン全体を集中させる厳しいボリュームを与えられた。
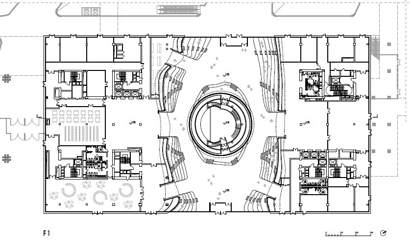
ザ・アイ
この図書館は球形の反射講堂を中心に展開し、メインのアトリウムとともに “アイ “と呼ばれるものを形成している。 球状の明るい観客席で、内部空間のパノラマが映し出され、建物前の美しい公園が映し出される。 吊り棚はアトリウム全体に球体を反響させ、利用者を図書館の中心に引き込む。 この輪郭は、図書館と外の公園、そして内部の公共通路をつなぐ2枚のガラスのファサードにも続いており、過剰な日差しを遮ると同時に、明るく均等な光の内部を作り出している。
図書館には120万冊の蔵書がある。
MVRDVの共同設立者であるヴィニー・マースによれば、「アイは図書館の中心です。建物を “くぼませ”、書棚に加えて、座ったり、読んだり、ぶらぶらしたり、登ったりするためのアクセスしやすい環境を作り出している。そのフォルムは、有機的な社交空間を作り出している。その中心にある講堂は、周囲を映し出し、内部空間を360度のパノラマで見渡すことができる。
3層吹き抜けのオーディトリアムは、南北2つの入り口から来場者を迎える。 観客席「ザ・アイ」は直径20メートル、300人収容。 円形のアトリウムの下に置かれ、金属製の構造体が白いキャンバスで覆われている。
アイ」の外観清掃は、ロープと移動式足場を使って行われる。
その他のスペース
建物は地下2階、地上5階の7階建てで、延床面積は33,700m2。
上層階には教育施設が充実しており、アトリウムの内周に沿って配置され、アトリウムを通ってアクセスできる。 東と西のエリアには、1階のサービスエリアとレストランがある。
1階からは、子供や高齢者のための読書エリア、講堂、正面玄関、テラス、そして複合文化施設につながる上階へのアクセスに簡単にアクセスできる。
3階と4階はそれぞれ5,500m2の広さがあり、オフィス、会議室、会議室、映写室、マルチメディア・オーディオルーム、政府情報、予約コレクション、香港と台湾の専門コレクション、歴史文献、特別図書、天津市の郷土資料のほか、カーブしたガラス張りの中庭と2つの屋上中庭を囲むように部屋が配置されている。
地下1階には、図書倉庫や大規模なアーカイブなど、公共スペースへのサービスをサポートするスペースがある。
構造
外から見ると、建物は1つの長方形のブロックに見えるかもしれないが、構造的な実態はまったく異なる。
構造上、図書館は3つのブロックで構成されている。 一方は、鉄筋コンクリート構造の左右対称の2つの建物で、もう一方は、コンクリート構造の上に載り、図書館の中央スペースを覆う屋根として機能する梁の形をした2つの自立床からなる中央ブロックである。 この自立した床から、後方から上部トレイにアクセスするための床スラブが吊り下げられている。
最後に、球形の観客席の構造は、最終的な反射仕上げを施すシートが置かれた鋼管構造である。

























