小屋
はじめに
ザ・シェッドは非営利の文化団体で、あらゆる分野のオリジナル作品を、あらゆる観客のために委嘱、開発、発表している。
ディラー・スコフィディオ+レンフロが設計を担当し、インテリア建築家のロックウェル・グループと共同で設計したブルームバーグ超高層ビルのシェッド・センターは、18,580m2の革新的な構造で、アーティストの最も野心的なアイデアをサポートするために物理的に変化する。
ハドソンヤードの区画整理計画の一環として、市はハイラインに隣接する10番街と11番街の間の西30丁目に所有する土地の一区画を将来の文化的利用のために残した。
2008年、市は新しい文化施設の提案依頼書を発行し、ディラー・スコフィディオ+レンフロ(Diller Scofidio + Renfro)を主任建築家に、ロックウェル・グループ(Rockwel Group)を協力建築家に選定した。 受賞案は、ひとつ屋根の下にあらゆる創造的分野を収容できる柔軟な建築コンセプト、「インフラストラクチャー建築」を提示している。 ザ・シェッドは、ハドソンヤードの超高層ビルに比べると比較的小さな8階建てのビルで、ハドソンヤードの開発用地の南側に建設された。 市は、プロジェクトが建設される土地の所有権を保持し、その実現のために資本助成金を提供する。
所在地
ザ・シェッドは、ブルームバーグ・ビルディング(545 W. 30thストリート、10番街と11番街の間)にある。ハイライン高架公園の北側に隣接し、彫刻作品 “The Vessel “の隣、チェルシーのギャラリー街に近い。 15ハドソンヤードに併設されており、ハドソンヤードの新地区の不動産開発内にある高層ビルである。
ハドソンヤードはマンハッタンの西側、ハドソン川沿いに位置し、30~34丁目と10~12番街の間に広がるニューヨークで最も新しい地区である。 ウエストサイド・レールヤードと呼ばれる現役の車両基地の跡地に建てられている。
コンセプト
このセンターは、1960年代にイギリスの建築家セドリック・プライスと演劇ディレクターのジョーン・リトルウッドによって考案された、影響力を持ちながら実現しなかった建設機械「ファン・パレス」に建築的なインスピレーションを受けている。 ザ・シェッドのオープン・インフラストラクチャーは、その前身と同様、柔軟性があり、恒久的にオープンな状態を保ち、規模、メディア、テクノロジー、アーティストのニーズの変化に対応することができる。
伸縮式の屋根をレール上で転がすことで、建物を伸縮させることができる。 ザ・シェッドのキネティック・システムは、ハイラインとウエストサイド・レイヤードの過去の工業製品にインスパイアされている。 固定構造には従来の建築システムを使用し、外部のキャノピーを作動させるためにガントリークレーンの技術を適応させることで、この施設は必要に応じて屋内外の大規模なプログラムに対応することができる。
スペース
ザ・シェッドのメインエントランスはハイラインの下、30丁目にある。 二次入口はハドソンヤードの公共広場にある。 シェッドのハドソンヤード広場への入り口は、34丁目ハドソンヤード地下入り口付近にある。
展開されていないときは、外殻がザ・シェッドの8階建ての「固定」建物の屋根と壁を包んでいる。 隣接する超高層ビルの内部と地下に位置し、4つの上層階には美術館並みの展示スペースがある。 開閉可能な屋根部品、特殊鋼のファサード、ケーブルネットの壁などの特別な機能は、透明で柔軟性がある。 地下4階は、貨物やオペレーションなどの内部ロジスティクスを含め、センターの残りのプログラムをサポートする。
ベースとなる建物には、2つのギャラリーフロア、多目的に利用できるケネス・C・グリフィン・シアター、地元アーティストのためのリハーサルスペースとクリエイティブ・ラボ、そして天頂まで光が差し込むイベントスペースがあるティッシュ・スカイライツ。
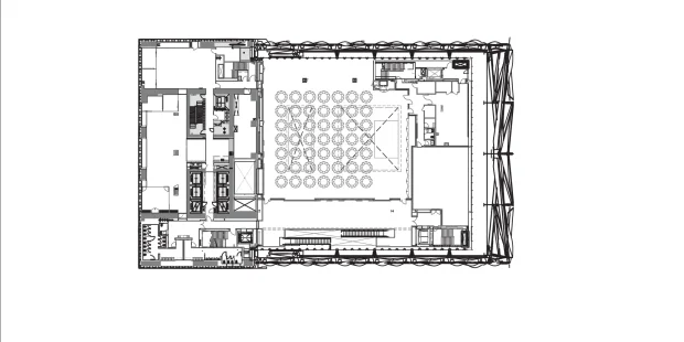
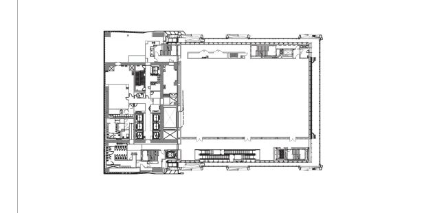
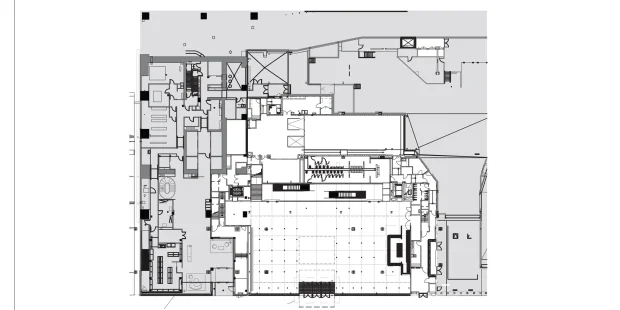
1階と2階にある合計2323m2のギャラリーは、柱のない美術館並みの大空間だ。
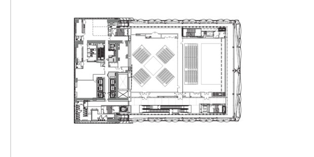
3階にあるケネス・C・グリフィン・シアターは500席で、様々なプロダクションや施設のニーズに応えるため、より親密なスペースに細分化されている。
最上階の天窓とティッシュ・ラボラトリーは、イベントやリハーサル、アーティスト育成のための素晴らしいスペースだ。 着席で約450人、立席で約750人を収容できる。
伸縮可能な外側のキャノピーを隣の広場に折り畳むと、マコートという象徴的な大きな空間が生まれる。
ザ・マコート
ザ・シェッドの最も象徴的なスペースであるマコートは、可動式のアウターシェルが隣接する広場の上に展開されることで形成され、大規模なパフォーマンスやインスタレーション、イベントのために1598m2の光と音と温度でコントロールされた部屋を作り上げる。 着席で1200人、立席で2700人を収容できる。
必要であれば、ベース棟の隣接する2つのギャラリーのスペースを追加し、観客収容人数を3,000人に増やすこともできる。
シェルルーフ全体が、リギングと構造的なキャパシティを備えた、賑やかな劇場のキャノピーとして機能する。 プラザ階にある大きな開閉可能なドアは、開ければ東と北の公共エリアと接することができる。
プラザ
ザ・シェッドのシェルがベースとなる建物の上に入れ子状に設置されると、1812m2の広場はオープンな公共スペースとなり、屋外プログラムにも利用できる。 東側ファサードは、照明と音響のサポートにより、プロジェクションの背景として機能する。 広場には屋外用の分散電源が設置されている。
このスペースで、ザ・シェッドは、アーティスト、ローレンス・ウェイナーによる特注の敷石を使った大規模なサイトスペシフィック作品である、初のビジュアルアート展「In Front of Itself」を開催する。
その他のスペース
オフィス、機械スペース、ロッカールーム、倉庫など、ザ・シェッドの人目につかないスペースは、1階と西隣の住宅棟15ハドソンヤードの低層階にある。 このレイアウトにより、ザ・シェッドのベースとなる建物の大部分を、プログラム可能なアートスペースに充てることができる。
構造
建築家とエンジニアは当初から、床材から照明、音響、温度に至るまで、未来志向のフレキシブルな空間のレトロには、絶え間ないチームワークが必要であることを知っていた。 多くの可動部分があるため、構造およびファサードのエンジニア、建築家、建設サポートの専門家、請負業者、キネティクスの専門家が初日から協力し合う統合チームが必要だった。
アイデア:伸縮自在の外殻が隣接する広場を囲み、大きく開放的で多機能な空間を作り出す。
それは、移動するのに十分軽い構造体と、それを動かすのに十分効率的なメカニズムである。
移動住宅
チームは純粋な創意工夫を凝らし、近隣の工業の歴史に少しうなづいた。 移動式ハウジングは、港湾や鉄道システムで一般的なガントリークレーンの技術を応用したダブルホイールトラック上を走行する。
エチレンテトラフルオロエチレン(ETFE)製バルーンパネル・システムで囲まれた特注設計の鋼鉄製シェルは、幅10インチの2本の熱溶解溶接鋼鉄製レールに沿って35m転がる。 高さ1.83mの8組の特注スチール製車輪は、構造物をスムーズにスライドさせるために慎重にテーパーがつけられている。
車輪は “ボギー “と呼ばれる一組にまとめられ、4,000トンのカーカス全体を運び、6つの15馬力モーターで駆動される。 わずか5分で「外」が「内」になり、1570m2のザ・マコートという建物の面積が2倍になった。 操作可能な巨大なドアは持ち上がり、エンクロージャーはオープンキャノピーのパビリオンに変身する。
建設
シェルドの建設は、下の車両基地の線路の上にプラットホームを支えるためのケーソンが沈められた後に始まった。
タワーを支えるプラットフォームは16の橋で構成され、2014年末に完成した。 建物自体の建設は2015年半ばに始まった。 開閉式フレームは2017年に完成した。 初期の報道では2017年か2018年に開業するとされていたが、2015年の報道では開業時期を2019年とした。 2017年5月の時点では、工事のペースから2018年か2019年のオープンと予測されていた。 2019年4月5日、ついに開幕した。
材料
この建物はLEEDシルバー認証を取得し、ニューヨークのエネルギー基準を25%上回るように設計されている。
モバイル・ハウジングの露出したスチール・グリッド・フレームは、耐久性があり軽量なテフロン系ポリマー、エチレンテトラフルオロエチレン(ETFE)の半透明クッションで裏打ちされている。 半透明のETFEは光を通し、ハリケーン級の強風にも耐えることができる。 ザ・シェッドのETFEパネルは、長さが21メートル近い部分もあり、これまでに製造された中でも最大級のものである。
この筐体は、広場の構造内に輻射暖房システムを採用し、筐体の居住部分には可変式の強制冷暖房システムを採用することで、最大限の効率を実現した、エネルギーを意識した設計となっている。 プラザには輻射熱床板がある。
ザ・シェッドのキネティック・システムは、ハイラインとウェストサイド車両基地の工業的な過去にインスパイアされている。 海運港湾や鉄道システムで一般的なガントリークレーンをベースにしたキネティック・システムは、ベースビル屋上のそりと、2階(プラザ・レベル)の長さ83mのレールに沿って誘導されるボギー車輪で構成されている。
巨大な台車の高度な熱解析を行い、火災時の性能を予測し、見苦しい防火対策なしに設計荷重を安全に運べることを実証した。



































