文化博物館(改修工事)
はじめに
2011年以来、バーゼル市立文化博物館(MKB)の印象的な屋根は、狭い路地と角度のついた屋根が並ぶバーゼルの歴史的な街並みに特別なアクセントを加えている。
中世と現代が融合したバーゼル文化博物館(MKB)は、豪華な屋根と広い階段のある絵のように美しい中庭が特徴で、それ自体がユニークで魅力的な複合施設となっている。
著名な建築事務所ヘルツォーク&ド・ムーロンが設計した天井は、近隣のバーゼル大聖堂の天井からインスピレーションを得ている。 この2つの建物は、この街の建築景観の道標として、世界中の専門家や愛好家の注目を集めている。
歴史
バーゼル文化博物館の歴史は19世紀半ばに遡る。1849年、建築家メルキオール・ベリによる古典主義様式の建物が、ミュンスターヒューゲルのアウグスティノ会修道院に代わってオープンした。 ユニバーサル・ミュージアム」は、当時そう呼ばれていた、この街で最初の博物館の建物である。 科学と芸術の両方を収容するために設計されたこの建物には、現在、ヨーロッパで最も重要な民族誌コレクションが収蔵されている。 1917年、約4万点に及ぶ在庫を抱え、建築家ヴィッシャー&ゾーネによって増築された。 2001年に2度目の増築が計画され、現在では30万点にも及ぶ展示品を収容できるようになった。 この改修には、博物館のための特別な入り口と新しい屋根が含まれ、博物館に新しいアイデンティティを与えることになる。 この最新の修復は、建築家ヘルツォーク&ド・ムーロンによって行われた。
所在地
鉄道駅とライン川南岸の間に位置するバーゼルの旧市街地 “グロスバーゼル “のミュンスタープラッツ20番地(Münsterplatz 20, 4001Basel,Switzerland)にある。
改修後は、美術館の正面玄関はミュンスター広場にある。 中庭に入ると、中庭の地形を反映した生きた舗装と、ファサードを覆うハンギング・プランツのカーテンの下、緩やかな傾斜の階段とスロープを通って、エントランスホールと地下のミュージアムショップに入る。
この地域には、16世紀に建てられた赤砂岩の建物である市庁舎や、15世紀に建てられたゴシック様式の大聖堂が印象的なバーゼル・ミュンスターがあり、数多くの博物館もある。
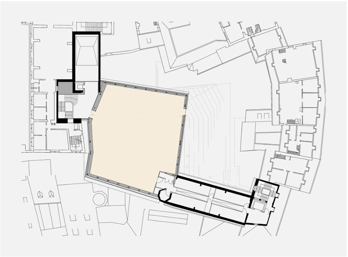
スペース
博物館は、のどかな中庭を囲むように、さまざまな建物が並んでいる。 左と右には、中世からの建造物で現在はオフィスとレストランがあり、その奥にはスイス人建築家メルキオール・ベリが手がけた古典主義建築がある。
コレクションの増加に伴い、1917年、18世紀のバロック様式のシュールホーフの中庭の側に、元の建物に新しい棟が増築された。 設計は建築家のヴィッシャー&サンズ。
前世紀末には、博物館のさらなる拡張が必要であることが明らかになった。 この仕事は建築事務所に任された。 ヘルツォーク&ド・ムーロンヴィッシャー&サンズ社は、上層階に特別にデザインされた新しい展示ホールを設けただけでなく、エントランス・エリア、館内のインテリア・デザイン、ヴィッシャー&サンズ棟の新しい屋根のデザインも一新した。
改装ヘルツォーク&ド・ムーロン
重々しく内向的な印象の建物は、当初はその中身を隠していたが、窓の多くが閉じられたファサードや、片持ち屋根の軒下に取り付けられた張り出した植生を支えるための螺旋状の構造によって、その印象を強めている。 しかし、建物の全長にわたって開放され、訪問者を歓迎する土台によって、これは相殺されている。 これらの建築的介入は、植生とともに、1917年に建てられた長く角ばった画一的なヴィシャーの建物を、異なるセクションに分割している。
窓を閉め切ったのは、建物の重量感と優雅さを高めるためだけでなく、古い部屋のスペースを確保するためでもあった。 わずかに残った開口部は広げられ、今では地面まで伸びている。 旧市街を見下ろす小さなニッチを形成するほど奥行きのある窓からは、自然光が室内に降り注ぎ、心地よい開放感が伝わってくる。
屋根と新しいギャラリー
黒緑色のセラミック・タイルで覆われた不規則なひだによって形成された屋根は、中世の景観と共鳴すると同時に、近隣の中心部における再生の明確なサインとして機能している。 六角形のタイルの一部は立体的で、空が曇っていても光を屈折させ、旧市街の屋根の細かい構造のレンガタイルによく似た効果を生み出している。
折れ屋根の鉄骨フレームにより、下には柱のないギャラリーが設けられ、650m2の表情豊かな空間は、低層階の静かな直角のギャラリーと印象的なコントラストを成している。 上階の幾何学的な形状は、不規則な稜線を持つのこぎり歯の屋根のようだが、実際は柱のない軽やかな空間の骨組みである。 表情豊かな空間は、低層階の静かな長方形のギャラリーとは対照的だ。
アクセス
ヘルツォーク&ド・ムーロンが改装するまで、文化博物館と自然史博物館はアウグスティネルガッセの同じ入り口を共有していた。 前者は現在、ミュンスター広場から、以前は立ち入ることができなかった裏庭のシューホーフを通って直接アクセスできるようになっており、広場の拡張部分となっている。
エントランスホールを作るために、かつての地下室は中庭に開放され、中庭は再び円形劇場の形に段差が付けられ、美術館のために拡張された。 ファサード全体をガラスで囲み、内部と外部の視覚的な関係を作り出している。
中庭
この中庭は、中世の建物の裏側の特徴的な “パッチワーク “のような形をしており、街の中心的な広場であるミュンスター広場の延長線上にあり、あらゆる種類の博物館活動や祝典のための社交場となっている。 その一部は低くなっており、幅が広くやや傾斜のある階段が博物館の入り口へと続いている。 吊るされた植物やつる植物が独特の雰囲気を醸し出し、屋根と相まって新たなアイデンティティを生み出している。
古い部屋の改装
旧展示ホールの改修には、鉄筋コンクリートの補強壁の設置による耐震安全性の向上、貨物用エレベーターの交換、来場者用エレベーターの設置、暖房・換気システムの改修・調整、防火・侵入防御の改善などが含まれた。
ギャラリーの3つのフロアは、同じパターンで部屋が並んでいる。 1階のエントランスの真上には、中庭を見渡せる片側に窓のある大きな部屋がある。 その上、天井を取り払い、狭い窓のある2階建ての部屋を作り、そこにコレクションの中で最も大きなものを展示できるようにした。 この部屋は博物館内のオリエンテーションルームにもなっており、来館者はここから下を見下ろすことができる。
構造
カバー
長さ29m、幅27m、高さ10.50mの巨大な屋根の上部構造は、表現力豊かにデザインされ、組み立てられ、屋根裏に追加の展示スペースを提供している。
デスバン
階段室とホールが建物の高さにある本館は、柱のない突出した上階を加えて増築された。 既存の床の上に建てられた650m2の新しい自立式ロフトは、外壁の上に設置され、外壁は支持面として機能する。
この特別な展示ホールに対応するため、元の切妻屋根は新しい建築物に取り替えられた。 既存の壁は、外壁も内壁も追加の荷重を支えることができなかったため、建物全体に伸びる自立した木造フレームが建設された。
ホールに必要な床面積を確保するため、新しい建物は古い建物から8メートルも張り出している。 荷重は数個のスチール製ブラケットを経由して分散される。
屋根の折れ曲がりが不揃いであるにもかかわらず、近隣の歴史的建造物の景観と同じようなスケールを持つように、アーティキュレーションが施されている。
ギャラリー
ギャラリーの改装は、全体的に同様の原則に従って行われた。 古い部屋には古典主義的な格天井があり、後に増築された部屋には一方通行のコンクリート梁がある。 部屋の元の構造を復元するため、偽の天井は取り除かれ、技術サービスは既存の建築要素にできるだけ目立たないように統合された。
アクセス
エントランスレベルの新しいファサードの開口部は、既存の柱と新しい複合柱によって荷重が伝達されるサポートビームによって可能となる。
材料

山脈の形に折りたたまれた屋根は、このプロジェクトのために特別に開発された1万枚の釉薬のかかった立体的な六角形のセラミック・タイルで覆われている。 その特異な形状のため、また光の入射、時間帯、見る角度によって、緑色と明るさや色相が交互に変化し、絶えず変化する視覚的外観を作り出す。
新しい屋根の蒸気バリアと断熱材は、鉄骨構造の外側に配置されている。 屋根の断熱層はスタンディング・シーム・シートメタル・ルーフで構成されている。 セラミック・タイルの露出した屋根は装飾に過ぎない。
ミュンスター広場の舗装は、入場口へと続く階段の始点まで続いている。 階段はクリンカー煉瓦で覆われ、前面は赤いポーフィリーで覆われている。
エントランスのファサードは、大きな張り出しを邪魔する空中庭園で飾られている。 残りのファサードはバージニア・クリーパーで覆われている。















































































