ウォールハウス2
はじめに
ウォールハウス2は、造園家アーサー・エドワード・バイのために1971年から73年にかけて設計されたことから、A.E.バイ・ハウスとも呼ばれ、アメリカ・コネチカット州リッジフィールドに建設される予定だった。 これは、建築家ジョン・ヘイドゥックが1960年代半ばに建築の「第一原則」と呼ぶものを探求するために始めた一連のプロジェクトの第二弾である。
しかし、トーマス・ミュラー/ヴァン・ライマン建築事務所と オトノモ・アーキテクトンがこの建物を建てたのは、2001年のブルームーン建築祭のおかげだった。 グロイニンゲンにおける ヘイドゥクのもうひとつの作品は、A7高速道路沿いに建設された「The Tower of Letters」で、1990年に町の9周年記念事業の一環として実現した。
2004年、Stichting Wall House # 2という財団がこの建物を取得し、公共的・文化的機能を持たせることを目的とした。 2005年夏には、アーティスト・イン・レジデンス、一般公開、各種イベント、知識開発という4種類の活動をプログラムとして実施し、ハウスを一般公開した。
所在地
この視覚的にもコンセプト的にも魅力的な住宅は、オランダの グレーニンゲン市が2001年に建設を決定するまで、コンセプトとしてしか存在しなかった。 残念ながら、完成したのはジョン・ヘイドゥクの死後だった。
この邸宅は、パーターウォルドゼーメール湖を見下ろすホーンセ・メールの住宅地のはずれの開けた土地に建っており、この特別な土地のために設計されたわけではないが、周囲の環境との対話を成立させている。
空間コンセプト
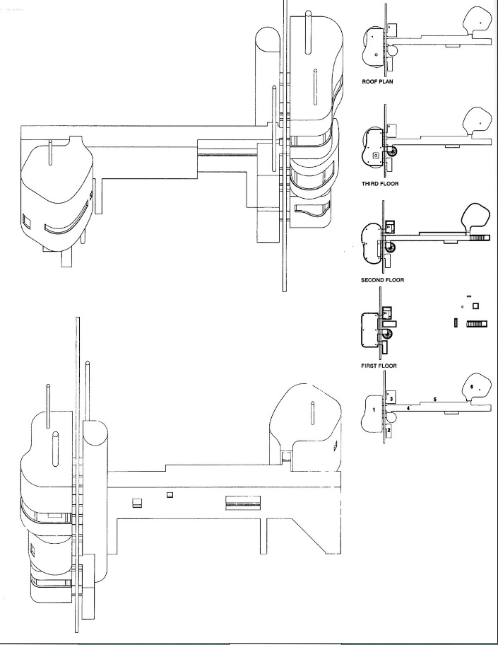
このプロジェクトでヘイドゥックは、壁を使って伝統的な住宅の構成を再解釈している。周囲の壁に囲まれたさまざまな空間を見せる代わりに、『ウォールハウス2』では部屋と循環システムを物理的に隔離している。
キッチン、ダイニングルーム、ベッドルーム、リビングルームは曲線のボリュームを積み重ねたもので、独立した円形の階段で縦につながり、書斎とは長い廊下でつながっている。
ヘイドゥックが部屋と循環システムの間に設けた壁は、ある部屋から別の部屋へ行くにはそこを通らなければならず、通路の線、境界線となる。 イエロー、グリーン、ブラック、ブラウン、グレーのパレットが、各ボリュームの機能分担を強調している。
「…人生とは壁のことであり、私たちは絶えず壁の中を出たり入ったりしている。壁とは最も速く、最も薄く、私たちが常に通過しているものであり、だからこそ私はそれを現在の、最も表面的な状態として見ているのだ…”ジョン・ヘイドゥック
過去から未来への物理的な移行、つまり裏と表、閉じた状態と開いた状態の移行を象徴する壁によって、人生を時間の文脈の中に位置づけるようにデザインされた。 ヘイドゥックにとっての壁は、住民の異なる機能、つまり壁の片側は生活、もう片側は仕事という、建築的な分離をも表している。
空間と時間の物理的な対立という考え方に基づき、別々の要素で精巧に作られた理論的な家である。 これは重要な建築コンセプトの博物館学的表現である。
スペース
ウォールハウスでは、密閉された容積の中に一連の部屋があるという伝統的な建物の概念を変え、密閉された容積から部屋と循環システムを取り出し、隔離された循環システムとして配置している。
デザインの焦点は、高さ14メートル、長さ18.5メートルの壁である。 そこからぶら下がっているように見える有機的な形の空間には、1階の寝室、2階のダイニングルーム、最上階のリビングルームがある。 壁の向こう側にはエントランス、トイレ、室内ブリッジ、オフィスがある。
それぞれのボリュームには機能があり、3つのボリュームは壁の片側に1つずつ重ねられているが、これは象徴的なものに過ぎない。 その間を行き来するには、これらのボリュームの上にそびえる壁の反対側を通り、円形のパイプ状の階段にたどり着く。
壁の反対側には、各フロアに通じる階段のほかに、インスタレーション用のスペースが2つと、メインの書庫から離れたアメーバ状のスタジオに通じる長い廊下がある。 居住空間は曲線的で、インスタレーションは幾何学的だ。
構造
厚さ1.50mの壁は、家を形成する軸と、アトリエで終わる水平軸、そして居住空間を構成する垂直軸の積み重ねられたエレメントを見かけ上支える軸の間のコネクターとして機能するが、エレメントは柱の構造グリッドによって支えられているため、壁はガイドとしての役割しか果たしていない。 壁は内側からは見えないが、その間にガラス張りの構造でつながった視覚的に認識できる狭い空間がある。
各機能部品は他の部品から隔離され、スタジオ以外はすべて同じ壁に隣接して積み重ねられている。 このように、壁は部屋を出入りする際に通過する仕切りの要素であると同時に、統一する要素でもある。
室内を囲むのではなく、空間内の位置を示す大きな壁が、このシステムの主な構成要素である。 サーキュレーション・システムにアクセスするためには、この壁を通らなければならない。ヘイドゥックは壁を隔離することで、その意味を強めている。
建築技術、壁の色、解放された窓など、この作品はル・コルビュジエを彷彿とさせるが、よく見ると、独立した要素が露出し、それ自体が明確化された、重要なキュビズムの影響が見られる。
材料
仕切り壁と柱には鉄筋コンクリート構造が採用された。 廊下は鉄骨、木材の壁、スタッコの外壁で造られた。
ヘイドゥクの入念な設計により、自立しているように見える壁は、ガラスでつながれている。





















