ザグレブ人文社会科学部図書館
はじめに
ザグレブの人文社会科学部の図書館は、プロジェクトが完全に決定してから数年後の2009年3月に落成した新校舎に移転した。 最初のスケッチは1994年に描かれたが、新校舎の必要性は1961年の学部棟完成直後から明確になっていた。 人文社会科学部は、クロアチアで最も古く、最大の社会科学分野の研究・高等教育機関であると同時に、クロアチアの文化と社会に大きな影響を与える重要な文化機関でもある。 クロアチア最古の大学であり、ヨーロッパ最古の大学のひとつであるザグレブ大学の一部である。 ザグレブ大学の歴史は、イエズス会アカデミーの大学としての地位と特権が認められた1669年に始まる。 1692年以来、ザグレブにおける哲学研究は、公的な高等教育機関であるネオアカデミア・ザグレビエンシス(Neoacademia Zagrebiensis)として、正式かつ法的な活動を開始した。
新校舎には、以前は学部内にあった小さな図書館がいくつも入っている。 学部棟に隣接する不規則な台形の小さな土地に、蔵書数(最大75万冊)でクロアチア第2位の24の図書館を収容する必要があった。 図書館は学部の図書館システムの基本単位であり、学部の人文・社会科学のさまざまな分野、領域、部門を機能的に相互接続している。
所在地
敷地は例外的に狭く、すぐそばの既成市街地によって決定される。 このため、大学通りに隣接する複合施設のオープンスペースを埋めるという問題が浮上してくる。 クロアチアの ザグレブにあるユニバーシティ・レーンの背景をなす図書館。
コンセプト
斜めにカットされた背の高い建物は、ファカルティの低く細長い建物の上にそびえ立ち、ある意味、すぐ周辺の既存の低く垂直な建物を補完している。 プロジェクトの視覚的外観は、光、空間、眺望という要件に合致している。
斜めの形は、地形と将来の分析から生まれたもので、近隣の建築物との関係ではかなり大きなボリュームである。 長く上向きに傾斜した北側のファサードは、望ましい北側の光と街の景観を既存の建物から取り込み、短く下向きに傾斜した南側のファサードは孤立を避ける。
この建物の視覚的、都市的な論理は、地下の書庫や個人作業用の独立したガラス張りのスペースから、狭い吹き抜けを通り、多層階の読書室を通って、開放的な屋上テラスへと徐々に移行することによって特徴づけられる、組織的な側面へと流れている。 シンプルさ、認知度、基本的なアイデアの読みやすさを優先させることが、このプロジェクトの精巧さと実現性を決定づけた。
スペース
図書館には外部からの専用の入り口はなく、学部棟と管理棟の間にあるガラス張りのエリアを通って、本館のエントランスホールから入ることができる。 人文社会科学部の既存校舎からの距離は、地上階でわずか6メートル、上層階で14メートルしかない。 狭い吹き抜けでは、建物の傾斜を利用することで、そのわずかな距離を解消している。 この勾配は、図書館に北側からの自然光をより多く取り入れる必要性と、既存の教員棟を尊重する必要性から生じた。 南面角度12度のパッシブ日射遮蔽ソリューションとして、建物の南面ファサードにも繰り返されている。
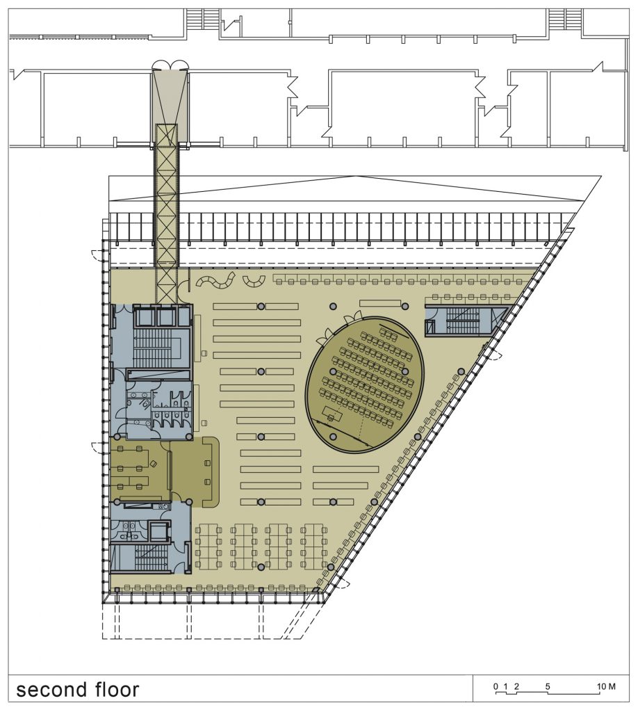
図書館は8階建てで、うち1階は地下にある。
施設フロアを含む図書館の総面積は8,800m2。 利用者のための施設は、6階建ての噴水へのアクセスが可能な閲覧室として構成されている。 閲覧室は700人収容で、それぞれネットワークと電源の接続が可能で、130席にはコンピューターが設置されている。 学生やスタッフのためのワークプレイス、個人作業のためのガラスの箱、最先端のA/V技術を備えたマルチメディアルームや電子教室、あるいは特別な図書館資料を備えた特別に保護されたスペース、圧縮され、相互通信が最小限のスペースなど、様々なタイプのコンテンツが絡み合い、補完し合っている。 図書館システム全体は高度な技術的進歩を遂げており、供給、目録作成、公共貸出、統計モデルを備えている。 この図書館の主な利点のひとつは、3M RFID電子チップシステムで、自己監視が可能なため、利用者が自分で巻物を借りることができる。
読書室の3フロアにわたって傾斜したガラスは、プリズム型の建物の結果である。 フロアのギャラリーと組み合わせることで、図書館と学部の間の外部空間と一体となった刺激的なワークスペースが生まれる。 全フロアの外周に沿ったワークデスクのデザインは、建物のフットプリントの小ささを活かしている。
材料
ファサードの金属製グリルは、日射遮蔽を目的とすると同時に、眺望を縁取ることで、外部空間と内部空間の間に距離を設け、十分な仕事の集中を可能にしている。 ガラススラブの透明性と、外面の造形的要素としてのネット状のサンスクリーンは、人文社会科学部が大学の伝統である開放的で創造的な精神の担い手であるという認識に従って、建物の開放性を示唆している。 ザグレブ、クロアチア、そしてヨーロッパ。
鉄筋コンクリートの柱はすべて見えるように残され、素材の質感と色を際立たせている。 建物内部の柱には無色のワックスが塗られている。
構造
図書館は鉄筋コンクリートの骨組みで、北側のガラス張りの部分には鉄骨が組み合わされている。 南向きの角度が12度ある支持構造の南斜面には、さらに7階分の足場を組む必要があった。





















