バンク・オブ・アメリカ・タワー
はじめに
バンク・オブ・アメリカ・ビルは、別名ワン・ブライアント・パークとも呼ばれ、クック+フォックス・アーキテクツによって、世界で最も効率的で環境に優しいビルのひとつとして設計された。 10億ドルをかけて建設された55階建てのタワーは、77.72mの尖塔を頂点とし、2009年にオープンした。
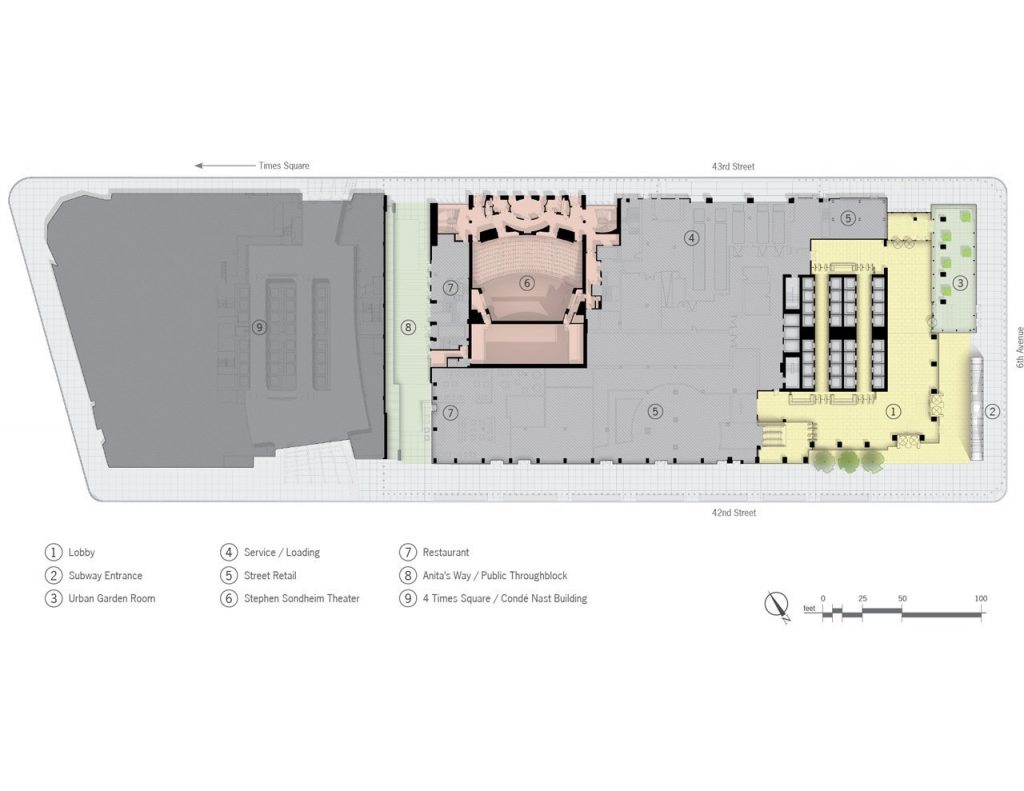
ブライアント・パークの北西角という戦略的な立地にあるこのバンク・オブ・アメリカ本社は、「環境に優しい」建物内に重要な公共サービスと安全な銀行業務を兼ね備えている。 公共スペースには、象徴的なヘンリー・ミラー劇場の改築、スティーブン・ソンドハイム劇場への改名、ブロック中央の歩行者用通路、操作可能なガラススクリーンを備えたストリートレベルの「ウィンター・ガーデン」などが含まれる。 ポディウムとタワーを覆うドラマチックなクリスタルのフォルムの中に、バンク・オブ・ジ・アメリカズの商業オフィス、アメニティ機能、管理エリアがある。
ワン・ブライアント・パークは、水やエネルギーの節約、材料の効率化、室内環境の質など、グリーン・ビルディング・ムーブメントの最も革新的なアイデアの多くを壮大なスケールで実現し、現代のビル・デザインに対する考え方の転換を象徴している。 大規模な商業開発の市場を根本的に変えた。 近代的な超高層ビルによって定義された都市において、このタワーはまた、21世紀の再生、都市管理、そしてグローバル・シチズンシップについて、非常に目に見える形で声明を出している。 高層オフィスタワーとしては世界で初めてLEEDプラチナ認証を取得した。
所在地
ブライアント・パークの向かい側、アメリカ大陸通りと6番街の間の42丁目に位置するバンク・オブ・アメリカは高さ365.8m。 2009年の開業当時は、ワン・ワールド・トレード・センター、432パーク・アベニュー、エンパイア・ステート・ビルに次いで、市内で4番目に高いビルだった。 2010年には、高層ビル・都市居住評議会から「ベスト・トール・ビルディング・アメリカ」賞を受賞している。
コンセプト
ワン・ブライアント・パークにあるバンク・オブ・アメリカ・タワーは、高性能ビルの新たなスタンダードを打ち立てるべく設計された。タワーに入居するオフィスの従業員のためでもあり、21世紀初頭、バイオフィリア(生命愛)、つまり自然環境とのつながりを求める人間の生得的な欲求という概念に基づき、持続可能性という現代の要請に目覚めつつある都市と国のためでもある。 入居者の規模に合わせたビジョンは、日照、新鮮な空気、屋外との本質的なつながりを重視した、最高品質のモダンな職場を作ることだった。 都会的なスケールで、このタワーはマンハッタンのダウンタウンのコンテクストだけでなく、その周辺の環境にも対応し、すでに象徴的なスカイラインに新たな表情豊かなシルエットを加えている。
この建物の設計者は、ニューヨーク万国博覧会のために建てられた有名なニューヨーク・クリスタル・パレスにインスピレーションの一端を見出した。 ニューヨーク 1853年にブライアン・パークに建設され、アメリカで初めて軽金属製の構造フレームを採用した。
スペース
開放的でニュートラルな空間は、ブライアント・パークの公共空間とのつながりを生み出し、屋上には緑地が広がり、一般にアクセス可能なアーバン・ガーデンを囲む部屋もある。
公共スペース
バンク・オブ・アメリカ・タワーは、ニューヨークの高層オフィスビル規制で義務付けられている約3倍の公共回遊スペースを備え、周辺地域の歩行者や交通機関の回遊に貢献し、その配置を変えている。 公共施設には、広い舗道、公共ストリートファニチャー、43丁目と6番街にあるアーバンガーデンルームなどがあり、近隣の公園の魅力的な延長として機能している。
また、42丁目と6番街の南東角に、広い階段とエレベーターを備えたガラス張りの地下エントランスを新設。 42丁目の北側にある地下歩行者通路は、B、D、Fの地下線とタイムズ・スクエア駅を結び、42丁目の新しい中通りの地下入り口は、地下通路につながり、さらに、インタラクティブな情報キオスクが設置された「ブロードウェイの壁」スタイルの特別な通路がビルを貫く。
タワー
超高層ビルが通りの均一なグリッドからそびえ立つにつれて、タワーの集中度が変化し、プロポーションの垂直度が増すとともに、日光にさらされる表面積が増える。 このビルは195,096m2の面積を有し、モダンなデザインのオフィス専用となっている。
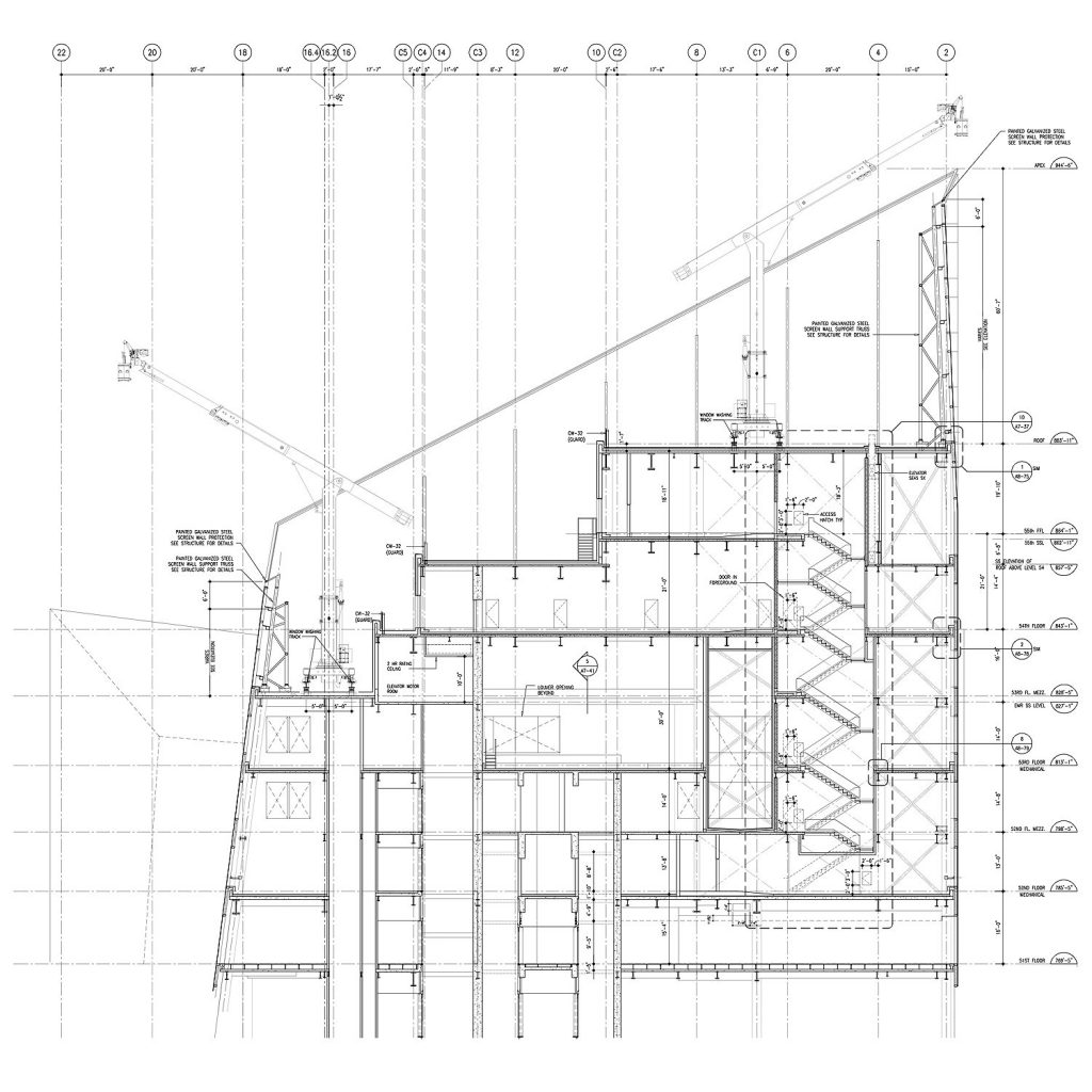
約18階からカーテンウォールの上端まで、建物の四隅は約7度(平均)の浅い角度でコアに向かって内側に傾斜し始める。 各コーナーは異なる階から傾斜を始め、傾斜面はそれぞれ20度前後の異なる角度で傾斜しており、ボリュームをより軽く、ダイナミックに見せている。 この特徴により、下の街路空間の採光と空気の質が改善されるだけでなく、通常はニューヨークの典型的なブロックグリッドによって制限されるはずの内部からの視覚軸が拡張される。 変化に富んだ傾斜面と極端に明るい色のカーテンウォールは、建物に非常に大きな水晶の結晶のような外観を与えている。
その結果、角ばったファセットがミッドタウンの摩天楼の森を取り囲み、その中を斜めに見渡すことができる。 南東に面するこの建物は、深い二重壁によってブライアント・パークに面している。 タワーの切子ガラスデザインは、鋭いひだや正確な垂直線を持つユニークな彫刻的表面を特徴とし、太陽と月の動きによってアニメーション化される。 複雑な周囲の歩行者や交通機関を収容する建物の基部から、尖塔の先端まで続く完全な集中部まで、デザインはマンハッタンのミッドタウンの建築環境に対応している。
建物の透明なファセット面は、知覚と光の質を変える透過性の膜として機能する。 この透明なガラスの表皮の中には、自然界の有機的な何かが具現化されている。それは、眼下に広がるストリートの運動やエネルギーだけでなく、自然界に見られるダイナミックな結晶構造のフォルムにも呼応するものなのだ……」。
構造
8,094m2の敷地に建てられたこのプロジェクトは、そのダイナミックなデザインだけでなく、建設に用いられた経済的な手法も目を引く。
カーテンウォールは建物の各コーナーが上部に向かうにつれて2方向に傾斜しているが、柱はコアに直交する1方向だけに傾斜している。 このシステムは大幅なコスト削減を実現した。 すべての均等な外柱は、中心から6.10mのところに配置され、異なる高さに向かって傾斜し始める。 さらに、柱がオフセットしているために横荷重が蓄積される場合、床構造はその結果生じる荷重をコアに伝える必要がある。 このシステムを使った建築には、より大きな工夫が必要だった。
建物の高さと規模の大きさから、エンジニアは構造体に鉄筋コンクリートを使用する可能性も考えたが、このシステムにはより多くの時間と予算が必要となるため、また、このような大規模なインフラを開発するには鉄鋼の方がより容易であることを考慮し、設計チームは、横荷重に耐えるため、鉄骨フレームと垂直輸送コアのコンクリートせん断壁の複合構造を選択した。
柱の大部分はASTM A992 – グレード50のワイドフランジで、その他の部材はA572グレード50の圧延鋼材で、タワー基部の高荷重を支えるために大型化されている。 街路レベルでは、重厚なフレームがアーバン・ガーデンルームに光と風を取り込む。
この構造システムは屋根の高さで様相を変え、スクリーンの壁はASTM A500グレードB鋼の10×8 HSSと8×8 HSSセクションで構築された構造で片持ちになっている。
この構造は、機械設備を配置する屋根の面積を最大にするため、建物の外周をできるだけ薄くした。 また、高さ77.72mのアジュガにもアクセスできる。
針
主に溶接された大口径の鋼管で構成され、針は根元の直径1.77mから先端の直径0.66mまで細くなっている。
フラット
床は0.08cmの複合金属製プラットフォームで構成され、一般にW18x35の鋼鉄製セクションで骨組みされ、表面積はそれぞれ12.95mである。 柱の変位による追加荷重が必要な場合は、横方向の力をコアに伝えるために水平梁を構造体に追加する。 床から床までの高さは4.42mで、建物の機械設備に対応している。
材料
このタワーは環境に優しい建材を使用しており、その87%はリサイクル材から作られ、コンクリートでさえ45%がリサイクル材で作られている。 建物は、自然採光を最適化する床から天井までの窓で包まれている。 このタワーには、廃水リサイクルの仕組みに加えて、独自の雨水利用システムがある。
ガラス、スチール、アルミニウムのこの超高層ビルは、そのすぐ近くにある特殊な敷地と、より広い都市のコンテクストにインスパイアされている。 その建設には、8社によって製作された2万5000トンの構造用鋼と、入念な柱の設計が必要だった。
パブリック・アーバン・ガーデンのしっかりとした自然素材は、ホワイトオークのドアハンドル、エルサレムストーンに埋め込まれた化石、レザーパネルなど、小さな触感のディテールによって、タワーを大地に固定する。
52基のエレベーターに加え、3基のエスカレーターがある。
タワーの床から天井までを覆う低密度のガラスカーテンウォールは、Low-Eガラスを通して太陽熱の上昇を最小限に抑え、特殊なセラミック片が熱を反射すると同時に、ユニークな眺望を提供する。
中水のリサイクル、雨水利用システム、水を使わない小便器などの節水対策により、数百万リットルの飲料水を節約し、ビルの水使用量をほぼ50%削減した。 床下空気システムと95%のろ過により、オフィスに送られる新鮮な空気は個別に制御でき、ビルから排出される際にはよりクリーンな状態になる。 密集した大都市の中心部での影響を考慮し、ビルの倉庫にある蓄熱式氷タンクで夜間に氷を生産することで、過度な電力供給が必要な都市の電力網に対するビルのピーク需要を削減している。 さらに、敷地内にある4.6メガワットのコージェネレーション・プラントが、ビルの年間エネルギー需要のほぼ70%をクリーンで効率的なエネルギー源として供給している。






























