ヴィアナ・ド・カステロ文化センター
はじめに
ヴィアナ・ド・カステロ文化センターの完成により、5年間の建設期間が終了した。 当初の建設業者2社が倒産したため、地元当局が資金を補助しなければならなかった。
ソウト・デ・モウラは1999年に文化センターの設計に着手したが、着工は2008年になってからだった。 5年後の2013年7月14日、センターは落成した。
所在地
このプロジェクトは、リマ川沿いの一帯の土地と、1974年4月25日の革命の軍事指導者の一人であるマルケス・ジュニオールに捧げられた新しい公共広場に組み込まれている。 ヴィアナ・ド・カステロ, ポルトガル. 河口に隣接するこの恵まれた立地は、2007年に建設されたアルバロ・シザの図書館やフェルナンド・ターヴォラのレジャーセンターとともに、アルト・ミーニョ地方の文化地区と建築のメッカの創造に貢献しようとしている。
人口4万7000人足らずの小さな町ヴィアナ・ド・カステロは、歴史的中心部をそのままに、進歩の細部を取り入れることに成功している。
コンセプト
ポルトガルの建築家エドゥアルド・ソウト・デ・モウラは、この文化センターを建物というより機械のようにデザインした。 近くに停泊し、博物館として使用されている1950年代の船、ギル・エアネス海軍病院の海の美学を参照する意図で、巨大なアルミニウムのパイプとサービスが上部の壁を覆っている。
形的には、アルミの箱と、その中で推進されるさまざまな活動の機能に必要なすべての設備が置かれるテーブルによって、この建物は定義される。
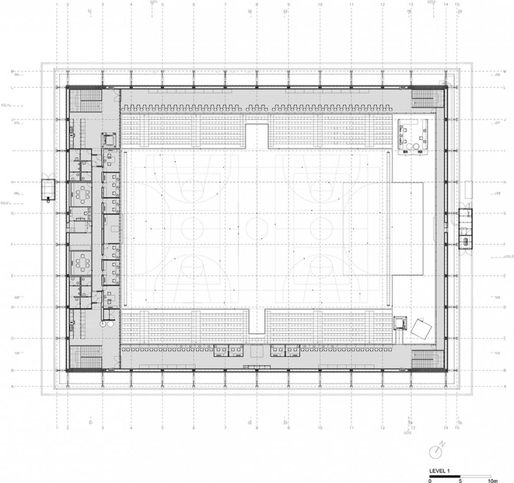
スペース
長さ70.1m、幅54.1m、高さ9.12mの長方形の間取りを持つ多目的パビリオンは、文化イベントやスポーツイベントのためのスペースである。 建物の主軸は、北端と南端に位置するメインエントランスによって定義され、北側の並木広場の路地に記されている。 また、レベル-1に通じるスロープ状のアクセスも作られた。 サービスエントランスは他の高層部に設置された。
センターは3階建てで、面積は3,792㎡。 収容人数は2,000人で、コンサート時には2,700人まで増やすことができ、取り外し可能な大きなステージがある。
地下3.44mの1階には多目的コートがあり、スポーツ・イベント、音楽演奏、展示会、見本市、会議などに利用できる。 フロアの長辺のスタンドには階段があり、一般客も利用できる。 上階にはエレベーターもある。
1階にはエントランスと、建物を取り囲み川を眺めることができるガラス窓があり、木製のスタンドやセントラルコートへの階段、1階や低層階へのエレベーター、各コーナーにある上階への階段がある。
1階はステージスタンドと管理スペース。
材料
建設に使われた主な材料はコンクリート、アルミニウム、ガラス。 これは大きな “アルミの箱 “で、その操作に必要な設備はすべてファサードの外側に配置されている。
センターコートとサイドスタンドの床には木が使われていた。
河川からの浸入がないようにするため、建物の安全を確保するための水抜きポンプシステムが設置された。 また、天井や金属製プロファイルの貫通を防ぐために、革新的なシーリング材が使用された。

























 
 
                                        
                                         
 
                                        
                                         
 
                                        
                                         
 
                                        
                                         
 
                                        
                                         
 
                                        
                                         
 
                                        
                                         
 
                                        
                                         
 
                                        
                                         
 
                                        
                                         
 
                                        
                                         
 
                                        
                                         
 
                                        
                                         
 
                                        
                                         
 
                                        
                                         
 
                                        
                                         
 
                                        
                                         
 
                                        
                                         
 
                                        
                                         
 
                                        
                                         
 
                                        
                                         
 
                                        
                                         
 
                                        
                                         
 
                                        
                                        