台州現代美術館
はじめに
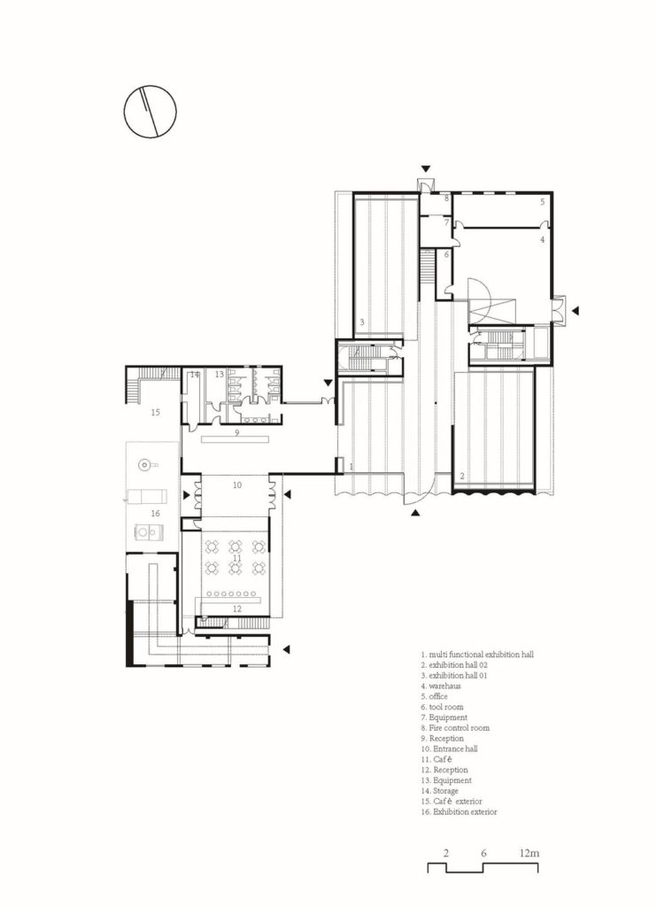
中国浙江省に位置する旧ロシア共産主義時代の建物は、上海を拠点とする アトリエ・デスハウスのチームによって構造的に改修され、産業空間を独自のテクスチャーを持つ芸術作品へと変貌させた。 Shamen Grain Depotの文化・クリエイティブ部門であるこの建物は、総面積2,450m²で、4フロアに8つの展示ホールがある。 このプロジェクトは、隣接する他の工業用建物との対話を開始し、文化に特化したより広い範囲を作り出すことを意図している。
所在地
中国・台州市の現代美術館は、沙門穀堡文化創意園区の新区画内に位置し、ユニークな歴史的文脈に囲まれ、ボグダフェン峰がそびえ立っている。 公園内の既存の工場や倉庫は、1955年から1991年までのソビエト連邦の建物の共産主義的な美学を持ち、この場所を現代に統合することを目的として改築・修復されている。
コンセプト
旧ソビエト政権時代の現存する建物は、ソビエト連邦の歴史的な一断面を物語るだけでなく、建築家たちのインスピレーションの源にもなっている。 コンクリートという最小公倍数を取り入れた単純なスタイルにとどまらず、この運動はまったく新しい建築カテゴリー「ソビエト・モダニズム」を誕生させるに十分な注目を集めた。 そんな思いから、アトリエ・デスハウスはかつての穀物倉庫を美術館に改修した。 旧ソビエト連邦を参考にしたブルータリズム・スタイルにインスパイアされた芸術的な空間は、荒々しいコンクリートと滑らかなシルエットの建物が並置され、内部と外部の一体感を生み出している。
透明性、プロムナード、雰囲気という3つの相補的な概念を結びつけることが、このプロジェクトの重要なアイデアである。 空間の透明性は、高さの異なる展示室を互いに入り込むように配置することで達成され、来場者はらせんを描きながら上の部屋へとのんびりと散歩することができる。
スペース
8つの展示ホールからなるこのプロジェクトの建築面積は2,450m2。 異なる階層は、半分のフロアを隣接するフロアに移動させることで形成され、上昇時の傾斜感を和らげるとともに、回遊の長さを延長することで、豊かな空間シークエンスを確立している。
ホワイエ
美術館のホワイエと、カフェやアートショップなどの文化的・創造的なスペースを組み合わせることで、旧式のボイラー、大木、トイレ、旧ボイラーの植物など、歴史的遺産を存分に生かしたユニークなエントランス・プレイスが誕生した。 ホワイエのテラスはグランドスタンドの形をしており、将来的には公共イベントのステージになる可能性がある。
展示ホール
異なる階にある展示室は、空間的な透明性を共有し、互いに浸透し合い、内部を歩く間に一歩一歩上へ上へと移動する感覚を来場者に提供する。
ホワイエは一般向けのイベントも開催できるように設計されており、上階のメインホールへと続く一連の展示スペースのスタート地点となっている。
サーキュレーション
回遊性という点では、樽型ヴォールト構造へと続く広場をつなぐ前庭が、空間的なシークエンスの序章となる。 ヘリカルな動きで、来場者は密閉された構造体を一段一段登っていき、最終的に上階の展示ホールにたどり着く。 こうして、空間的な三位一体が達成されただけでなく、構造物の方向性がしっかりと結びつき、景観に向けられたのである。
美術館の南側ファサードもまた、アーチ型の内部構造を外部に拡張したかのように、わずかに凹んだカーブの連続として配置され、広場に向かって美術館の正面性を構成している。
構造
アトリエ・デスハウスは、既存の工業用建物の構造改修を打ち放しコンクリートで行った。
この美術館は、打ちっぱなしコンクリートの荒々しさと、小さな樽型アーチの並列構造によって形成された絶妙な空間との比較を通して、斬新で芸術的な空間雰囲気を形成している。 この吹き抜けの構造は、屋内と屋外の一体化を意味すると同時に、照明システムを完璧に統合し、交錯する部屋によって生み出されるカイオスクーロを強調している。
材料
新しいビルは、金属製の構造フレームを持つモノリシックな現場打ちコンクリートとして設計された。 展示室では、白を基調とした作品を受け入れる雰囲気に合わせた。


























 
 
                                        
                                         
 
                                        
                                         
 
                                        
                                         
 
                                        
                                         
 
                                        
                                         
 
                                        
                                         
 
                                        
                                         
 
                                        
                                         
 
                                        
                                         
 
                                        
                                         
 
                                        
                                         
 
                                        
                                         
 
                                        
                                         
 
                                        
                                         
 
                                        
                                         
 
                                        
                                         
 
                                        
                                         
 
                                        
                                         
 
                                        
                                         
 
                                        
                                         
 
                                        
                                         
 
                                        
                                         
 
                                        
                                         
 
                                        
                                         
 
                                        
                                        