ロレックス・ラーニング・センター
はじめに
妹島和世と 西沢立衛が率いる日本の建築事務所SANAAが設計したロレックス・ラーニング・センターは、21世紀の新しい形の学習と交流のために設計された、先鋭的で非常に実験的な建物である。 エコール・ポリテクニーク・ドゥ・ローザンヌ(EPFL)の学習研究室、図書館、国際文化センターとして機能し、学生にも一般にも開放されている。
同センターはスイス政府とスイスの大手企業から資金援助を受けている。 このプロジェクトへのロレックスの参加は、EPFLとの材料科学研究や時計設計のためのマイクロテクノロジーにおける長年の関係や、ロレックス・コーポレート・アワードを通じた芸術、科学、文化における慈善活動の長年の伝統に基づくものである。
コンペティション
ロレックス・ラーニングセンターの建築コンペの目的のひとつは、図書館、学生の仕事場、文化活動などに十分なスペースを備えた建物を設計することだった。 2つ目の目的は、EPFLのキャンパスを代表する新しいエントランスを作ることだった。
建築家の妹島和世と 西沢立衛は、壁や床スラブを使う代わりに、丘や谷で利用者の異なるゾーンを自然に仕切る建築景観を作ることで、こうした要求に応えた。
ビルの建設は2007年に始まり、2009年に完成したが、落成式は2010年5月27日に行われた。
所在地
スイスの ローザンヌにある連邦工科大学のキャンパスに囲まれ、ジュネーブ川のほとり、アルプス山脈を見下ろす位置にある。
ロレックス・ラーニングセンターは四方が開放されているため、どの方向からでもアクセスできる。 建物内の景観は、キャンパスや近隣の街の景観の延長線上にある。
コンセプト
新EPFLラーニングセンターのデザインは、キャンパスの外観に本質的な影響を与える。 柔らかな白波が無数の流れるようなボリュームの変化を生み出し、広々としたパブリックエリアと親密なワーキングエリアが特別な雰囲気を醸し出している。
建築家の妹島和世氏と西沢立衛氏のコメント:
“…特定の形を考えていたわけではない。必要とされるプログラムと、個々のパーツの関係を見て、最も適切と思われる形にたどり着いたのです。言い換えれば、私たちは自問自答したのです。多くの人々が同時にさまざまな活動を行い、同時にそれを楽しむためには、どのような空間が必要なのか?最終的な形が決まってから、スイスの風景を先例としてスロープや傾斜路を使い、緩やかなスロープがどのように使われ、楽しまれるかを探った……」。
スペース
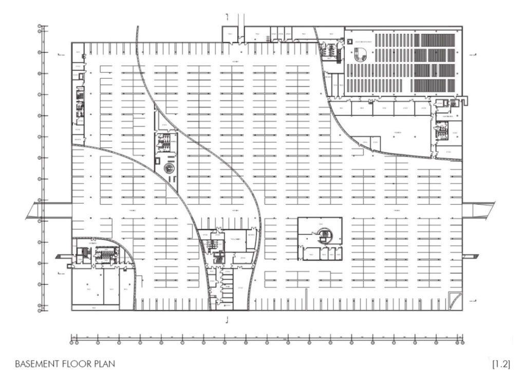
センターは非常に斬新な空間で、複雑なカーブを描く屋根を支える支柱がほとんど見えない内部「中庭」を中心に、なだらかなスロープとテラスがうねりながら連なっている。
キャンパスライフの中心となったこの建物は、平面的には長方形だが、なだらかな起伏のある屋根と床が常に平行であるため、より有機的な形をしているように見える。 支柱がほとんど見えないため、構造は地面に軽く接し、下にはオープンスペースが広がり、人々を中央のエントランスへと引き寄せる。
内部
22,000m2の広大なスペースは、上下するスロープによって、サービス、図書館、情報収集、ソーシャル・ネットワーキング・スペース、学習スペース、600席のフォーラム、レストラン、カフェ、そして美しく賑やかな屋外スペースがシームレスにつながる、ひとつの流動的な空間に広がっている。
内部では、起伏によって形成された丘、谷、台地がしばしば建物の見えない縁を形成するが、あるエリアと次のエリアの間に視覚的な障壁はない。 階段や段差の代わりに、緩やかなスロープやテラスがある。 はっきりと、しかし壁で仕切られることなく、ある活動エリアが別の活動エリアに道を譲る。 特別に設計されたガラス製リフトがあり、日常のリフトのデザインに合うように設計されている。
社交エリアや印象的な講堂に加え、建物には静かなゾーンやクワイエットゾーンがあり、高さの変化や半ガラス張りの「バブル」によって作られた音響的に分離されたエリアは、小グループがミーティングや作業をするための小さな囲いを形成している。
図書館
50万点の印刷物を所蔵するメイン図書館は、ヨーロッパ最大級の学術コレクションである。 つの大きな学習エリアがあり、860人の生徒を収容できる。
最新のマルチメディア図書館では、12,000冊のオンラインジャーナルと20,000冊以上の電子書籍にアクセスでき、高度な貸出機や書誌検索システムも完備している。
大学院の研究者が利用する学習センターでは、大学の主要なアーカイブや研究コレクションにアクセスでき、セミナーやグループワーク、その他のミーティングのための10個の「バブル」を含む学習エリアがある。
図書館の近くには、むき出しのコンクリートでできた大きな螺旋階段があり、地下のトイレとロッカーへと続いている。 地下には駐車場、機械室、資料室、その他のユーティリティールームもある。
中庭

構造内にある14個の異なる寸法の空洞が、建物のオープンプランに流動的な地形を与えている。 これらのガラス張りの空洞は、なだらかな丸みを帯びた、立ち入ることのできない「中庭」を作り出し、建物に換気と自然採光を提供している。 建築家はこれを「外部中庭」と呼んでいる。 いくつかの中庭の下部には建物の入り口があり、他の場所では訪問者が光と太陽を利用している。
中庭は建物の非常に重要な部分だ。 人々を招き入れ、屋内と屋外を視覚的につなぐ社交場である。 高台からは、キャンパスだけでなく、レマン湖やアルプスの壮大な眺めを楽しむことができる。
ロレックス・ラーニング・センターは、SANAAが建築コンペを勝ち抜いたという発表の中で妹島和世が表現したように、「親密な公共空間」である。
構造
建物の面積は121.5×166.5mで、地下1階。 地下室はスラブで上部が閉じられている。 このコンクリートスラブは、メインフロア、シェル間、建物の南西と北東のコーナーの床として機能する一方で、シェルの水平ベアリングとして、またポストテンションケーブルを通して水平荷重を支えるという重要な構造的機能を果たす。 建物の最大高さは10m、地上からの高さは4.5m、シェルの最大曲率は5m。
支持骨組みは、スパンの異なる2つのシェルと、最大90メートルに及ぶ中間のフラット・スラブ・エリアで構成されている。 フレームの端は、下層階のプレストレスト・コンクリートの天井スラブに完全に固定されている。 このスタイルの通常の建築とは異なり、シェルは建物の屋根を表していない。
内部空間の上部は鉄骨の屋根で囲まれており、この屋根はシェルの形状に沿った9×9mのグリッドの柱で建物全体を覆っている。 天井の鉄骨グリッド構造は、連続梁と一直線に並んだ二次梁の交差で構成されている。 細長い柱が甲羅に完全に固定されている。 その側面は、床から天井までガラス張りのファサードで囲まれている。
複雑なカーブを描く屋根を実現するためには、新しい工法が必要だった。 ロレックス・ラーニングセンターのエンジニアリングと建設システムは、非常に実験的で革新的である。
コンクリート・シェルの設計

3次元曲面のコンクリートシェルについて、SANAAは構造エンジニアと協力し、第1段階でコンピューターシミュレーションを行い、曲げ応力が最も小さくなる形状を探し出した。
基本的に、この建物は2つの “シェル “から構成されている。 つの殻の中には11のアーチがある。 小さい方の甲羅は4つのアーチの上にあり、長さは30~40メートル、大きい方の甲羅は7つのアーチの上にあり、長さは55~90メートルである。 アーチは70本のプレストレス地中ケーブルで支えられている。
建設
複雑なファサードシステムのため、コンクリートの施工は非常に正確でなければならなかった。コンクリート・シェルのたわみの動きと施工公差の両方を吸収する必要があり、また、このように大きく傾斜した表面を滑らかに仕上げる必要があったからだ。
正確な施工の一例として、2.5×2.5mの木材型枠をレーザーで切断し、GPS技術を使って現場で位置決めしたことが挙げられる。
換気と暖房については、自然換気が可能な時間帯と床暖房が必要な時間帯を決定するために、部屋の容積の起伏もコンピューター・シミュレーションで調べた。 この研究は、低エネルギー消費目標の達成に役立った。
ムーブメント
建物は1つの構造体で構成されているため、屋根を含むすべての要素は、自然や構造のわずかな変化にも対応できる柔軟性を備えていなければならない。 内部の天井は、このような変化に対応するためにアール状になっている。
総面積4800m2の中庭を囲む曲面ガラスのファサードも、コンクリートの動きに耐えられるように設計されている。 それぞれのガラスは別々にカットされ、蝶番のついた枠の中で独立して動く。
材料
主な材料は鉄と木で、コンクリートは精密な型枠で打設されているため、建物の裏側は磨き上げられたように見える。 床はコンクリート構造で、屋根は鉄と木でできている。 この2つは平行している。
シェルの形状に沿わせるため、コンクリートを流し込むための1400種類の型が必要で、連続的に流れる床空間を作るためには、2日間連続して材料を搬入する必要があった。
エネルギー効率
ロレックス・ラーニングセンターは、エネルギー効率の高い建物であり、そのエネルギー消費の少なさから、スイスで 建築物の優れた環境性能を評価する基準である「ミネルギー」ラベルを取得している。 大規模で開放的なビルのエネルギー問題を考えれば、さらに驚くべき成果である。
レストランとマルチメディア・ライブラリーを除いて、一日の大半は注意深く制御された自然換気システムによって照らされている。 二重窓、屋根に20cm、床に最大35cmの断熱材、外付けブラインド、自然採光、換気により、38.5kWh/m2を達成している。 また、湖の水を利用してキャンパス全体を冷やすヒートポンプを25台設置している。
























































































