本社 日本たばこ産業(JTI)
侵入
ジュネーブにある日本たばこ産業(JTI)の新本社ビルは、鉄骨造りで、緑に囲まれた持続可能なデザインの建物である。
コンペティションの受賞デザインは、以下のようなコミットメントを示している。 スキッドモア・オーウィングス&メリル(SOM) 建築、構造エンジニアリング、インテリアデザインの各チームが協力し、既存の4つのJTI施設を1つのランドマークビルに統合することで、統合的なデザイン、持続可能性、革新的なワークプレイスソリューションを提供します。
ヨーロッパで最も持続可能なプロジェクトのひとつであるこのプロジェクトは、その地域に対するポジティブなインパクトが評価され、この地域の将来の開発にインスピレーションを与えることが期待されている。
そのデザインは数々の賞を受賞している。 とりわけ、2016年を通して、アメリカ土木学会-建築学会(American Society of Civil Engineers-Architectural Institure)の構造システム設計部門功労賞、シカゴ・アテネウム2016の建築工学統合部門功労賞または国際建築家賞(International Architecturre Award)を受賞している。 2017年には優秀構造工学賞を受賞。
所在地
JTIの新本社は、スイス・ジュネーブの国連事務所近くにある旧工業地帯、セシュロン地区のカゼム・ラジャヴィ通り8番地にあり、緑に囲まれている。
コンセプト
レマン湖とアルプス山脈を借景にしたこの建築は、近隣との強いアイデンティティーを確立すると同時に、周囲の低い高さにも繊細に対応している。
9階建てのビルは、この規模のプロジェクトでよくあるように、大きな構造体をさまざまな視覚的要素で分割するのではなく、ひとつのすっきりとした形として構想された。
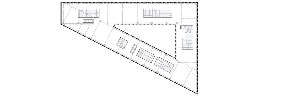
SOMの建築家による三角形のデザインは、建設予定地が三角形という難しい形状であったことと、使用可能なスペースを最大限に確保する必要があったことが決め手となった。 角ばった形は、2つの角が盛り上がった結果であり、それが傾斜したプロフィールを構造体に与えている。
スペース

三角形の建物は中庭を囲むように配置され、2つの角は片持ち梁になっており、残りの2つは地面に接している。 建物の北東と南の角が高くなっているため、8,162m2の広い公共スペースがあり、地域の交通拠点と歩行者が直接つながるようになっている。
それぞれ最大60mと75mのスパンを持つ印象的なキャンティレバー・スペースは、従業員や訪問者にユニークな到着感を与える。 5階建てのエントランスホールからボーデン湖を見渡すパノラマレストランまで、建物内を連続した循環ルートが通っている。 ジュネーブ31のオープンプランのコラボレーティブ・ワークエリア、66のミーティングルーム、23のコーヒーポイント、フードアウトレット、ビジネスセンター、講堂、ジム、2つのルーフテラス、各種ソーシャルスペースを備えている。 建物は1,162平方メートルを定員104人の幼稚園に割り当てている。
地下9,900m2には158台、自転車150台、バイク150台を収容できる駐車場がある。
モビリティ
連続したループの循環ルートは、建物内に行き止まりがほとんどないことを意味する。 このルートは、オリエンテーションやコネクティビティのツールとして機能することを意図した、堅牢な仕上げのカラーパレットや家具を使用することで区別されている。 リアム・ギリックやソル・ルウィットといった国際的に有名なアーティストがこの装飾に参加している。
インテリア・デザインのコンセプトは、垂直方向と水平方向の相互接続性を最大化し、1000人を超える従業員のためのコラボレーション・コミュニティ・スペースを創出することである。 長期的には企業のニーズに適応できるフレキシブルなスペース。
従業員は9台のリフトを使い、サービスは3台のリフトを使う。
構造
建物の構造は大きく張り出している。 反対側の2つのコーナーが高くなっているため、中央の中庭からは視界が遮られず、歩行者が敷地内を通り抜けることができる。
オープンプランの内部空間は、革新的なエンジニアリング・デザイン、すなわち、長さ18m、柱のない床板を可能にする周辺トーション・チューブ構造システムによって実現された。
ファサードの荷重を支えるため、構造物の垂直荷重を85,000kNまで、カンチレバーによる水平荷重を9,400kNまで伝達する球面鋼製ベアリングが使用された。 これらのベアリングは、特殊な凹凸設計により、3軸まわりのスムーズな回転も可能です。
ファサード
この建物には、革新的なクローズド・キャビティ・ファサード(CFF)が採用されている。このカーテンウォール・システムは、外部の気象条件に対応すると同時に、太陽光を最大限に取り込み、優れた眺望を提供する。
このシステムは、内層がトリプルガラス、外層がシングルガラスで構成され、中間の空洞には布製のローラーブラインドがあります。 パネルは密閉され、濾過され除湿された空気が加圧供給されるようになっており、内部での結露や熱の蓄積を防ぎ、外部の季節的な気候の変化に対応し、日中のワークスペースへの日光の透過を最大化する。 CCFシステムは、居住者の快適性を優先し、建物全体のエネルギー需要と二酸化炭素排出量を削減する。
材料
建物の構造には、5700トンの鋼鉄、1万2000本の鉄骨梁、190の接続ノード、50万本以上のボルト、1万1200m3のコンクリートが使用された。
内部は、グレーの色調を基調とした大理石の平板が空間を貫いており、時折、明るい色の壁や家具が邪魔をする。
ファサード
床から天井まで、幅3メートル、高さ4.3メートルの143種類の大きさの1,277枚のテッセレーションガラスパネルが外側のカーテンウォールを形成している。 これらのパネルの標準重量は1枚あたり1.5トンで、面積は18,500m2である。
環境
建物はスイスのミネルギー基準に適合している。 LED照明が装備され、屋内の日光を最大限に利用し、冷暖房のエネルギーを節約するように設計されている。
地熱暖房
深さ257mに達する104本の井戸と、ジュネーブ・ラック・ナシオン(GLN)の揚水システムへのバックアップ接続。
このビルはジュネーブ・ラック・ナシオン(GLN)熱暖房システムに接続可能で、レマン湖の深層水を利用し、個々のヒートポンプで地域の建物を冷暖房する革新的なネットワークである。



















































